Postponed | Lot 59

3-5 Oil Mill Lane, Wisbech, Cambridgeshire PE13 1NW

Postponed

  • Residential Development
  • Tenure: Freehold

Call the team on 01733 889833 for more information

Auction Date

Wed 10/12/2025

Auction Time

10:00

Auction Venue

Livestream Auction

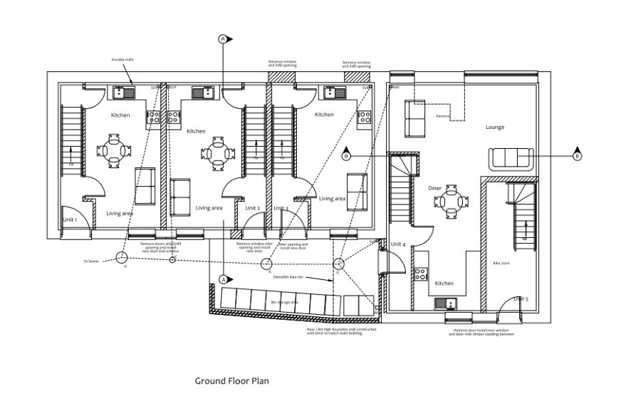
A residential development opportunity with planning to convert historic barns into three, two storey one bedroom townhouses plus a two and one bedroom flats

This development opportunity is offered with full planning permission Fenland District Council ref F/YR20/0901/F. A great prospect for a builder developer.. The development is three one bedroom town houses, a two bedroom flat and a one bedroom flat. Wisbech offers a variety of facilities and the A47 linking to Peterborough and Kings Lynn.

Tenure

Freehold

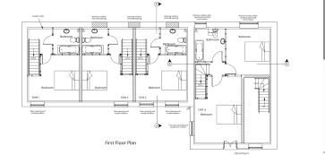
Proposed Two Storey Flat

Ground Floor : Hall, lounge, kitchen diner First Floor : Two bedrooms and bathroom

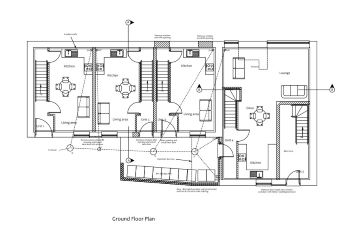
Proposed Three Storey Townhouses

Ground Floor : Kitchen/Living area First Floor : One bedroom and bathroom

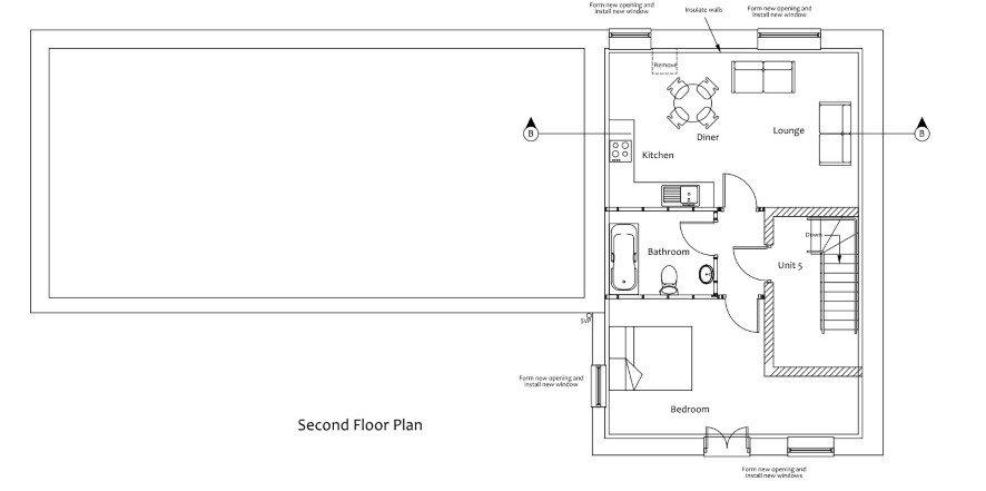
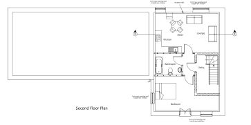
Proposed Second Floor Flat

Lounge, kitchen, bedroom and a bathroom

Planning Permission

F/YR20/0901/F - Fenland District Council

Services

Interested parties are requested to make their own enquiries to the relevant authorities as to the availability of services.

Local Authority

Fenland District Council

Solicitors

Setfords (Guildford), Ref: Sarah Howe, Tel: 0330 058 4011

Offered in association with

Aspire Homes

Important Notice to Prospective Buyers:

We draw your attention to the Special Conditions of Sale within the Legal Pack, referring to other charges in addition to the purchase price which may become payable. Such costs may include Search Fees, reimbursement of Sellers costs and Legal Fees, and Transfer Fees amongst others.

Additional Fees

Buyer's Premium - £1200 inc VAT payable on exchange of contracts.

Administration Charge - £1200 inc VAT payable on exchange of contracts.

Disbursements - Please see the legal pack for any disbursements listed that may become payable by the purchaser on completion.

View Larger Map

Disclaimer: The map preview provided above is for general guidance only and may not accurately reflect the exact location or surrounding buildings. Prospective buyers and interested parties are strongly advised to independently verify the precise location and surroundings before bidding.