For Sale By Auction | 10:00, 10 December 2025 | Lot 38

22 Victoria Street, Sheringham, Norfolk NR26 8JZ

*Guide | £140,000 - £160,000 (plus fees)

  • End of Terrace House
  • 2 Bedrooms
  • Tenure: Freehold

Call the team on 01603 505 100 for more information

Auction Date

Wed 10/12/2025

Auction Time

10:00

Auction Venue

Livestream Auction

Bay fronted two bedroom end terrace cottage close to the beach

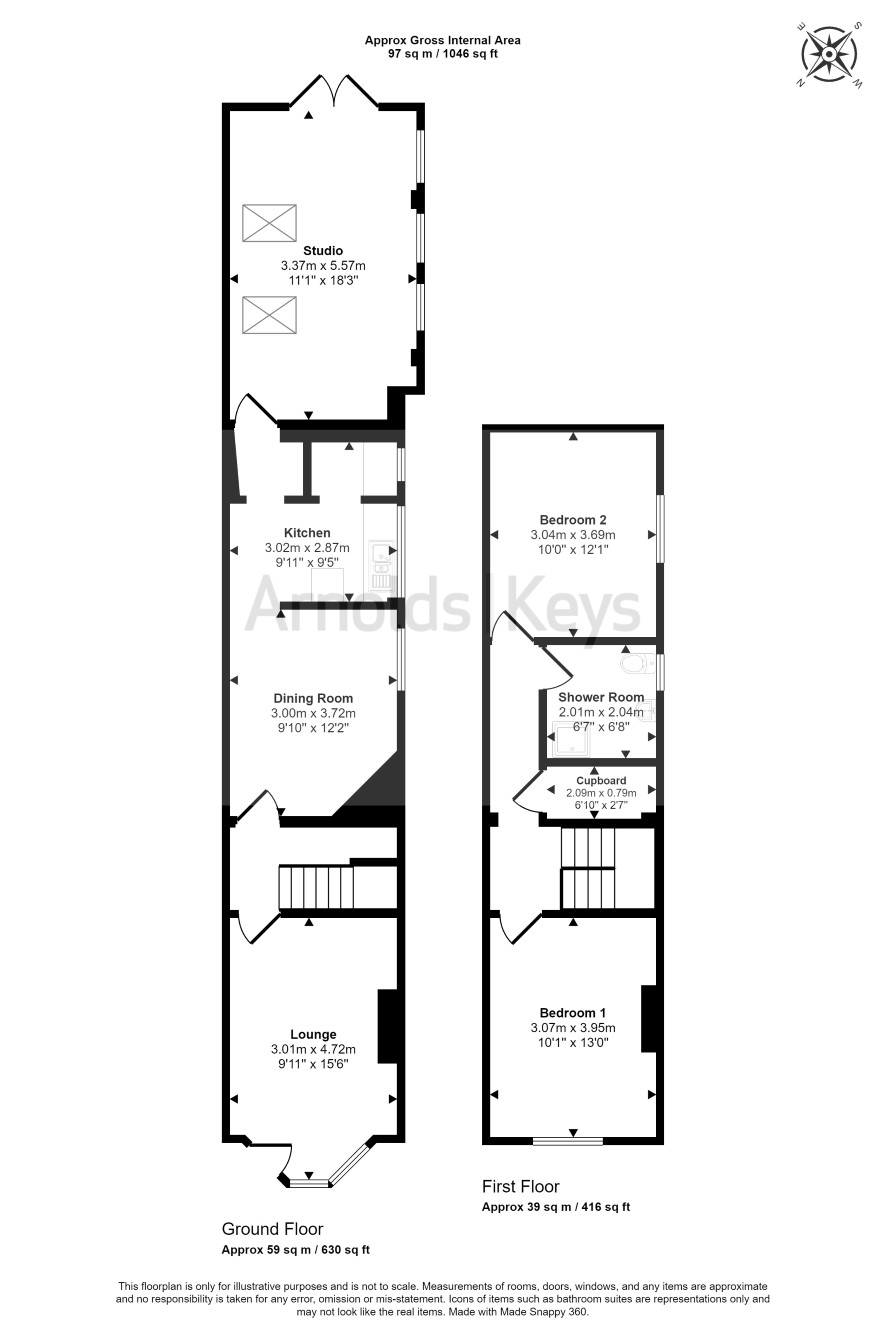
This two bedroom end terrace cottage has a gross internal area of around 1,046 sq/ft. Known as Allouette it is in a highly favoured location with sea views from the front elevation. It benefits from a large studio room at the rear of the ground floor. There is no off road parking and the property is in need of updating. It was the home of well known painter Derek Inwood (1925 to 2012) who lived there for the last four decades of his life. This is where he drew inspiration for perhaps his best known work, his warm and characterful seascapes depicting the daily life of Norfolk crab fishermen.

Tenure

Freehold

Ground floor

Lounge, dining room, kitchen, studio

First floor

Landing, two bedrooms, shower room

Outside

To the front of the property is a small, gated garden area with established shrubs. At the rear is a courtyard style garden with a pedestrian access to an alleyway at the rear providing access to both Victoria Street and Morris Street.

Viewings

Open viewings are arranged and the next are on Monday 24 and Thursday 27 November. To book the next available appointment please call the Norwich office.

Energy Efficiency Rating (EPC)

Current Rating F

Services

Interested parties are requested to make their own enquiries to the relevant authorities as to the availability of services.

Local Authority

North Norfolk District Council

Solicitors

Hayes and Storr (Sheringham), Ref: Claire Burns, Tel: 01263 825959

Important Notice to Prospective Buyers:

We draw your attention to the Special Conditions of Sale within the Legal Pack, referring to other charges in addition to the purchase price which may become payable. Such costs may include Search Fees, reimbursement of Sellers costs and Legal Fees, and Transfer Fees amongst others.

Additional Fees

Buyer's Premium - £960 inc VAT payable on exchange of contracts.

Administration Charge - £1200 inc VAT payable on exchange of contracts.

Disbursements - Please see the legal pack for any disbursements listed that may become payable by the purchaser on completion.

View Larger Map

Disclaimer: The map preview provided above is for general guidance only and may not accurately reflect the exact location or surrounding buildings. Prospective buyers and interested parties are strongly advised to independently verify the precise location and surroundings before bidding.