For Sale By Auction | 10:00, 10 December 2025 | Lot 102

262 St. Peters Street, Lowestoft, Suffolk NR32 2NA

*Guide | £70,000 - £90,000 (plus fees)

  • Terraced House
  • 3 Bedrooms
  • Tenure: Freehold

Call the team on 01603 505 100 for more information

Auction Date

Wed 10/12/2025

Auction Time

10:00

Auction Venue

Livestream Auction

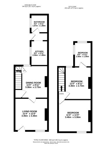
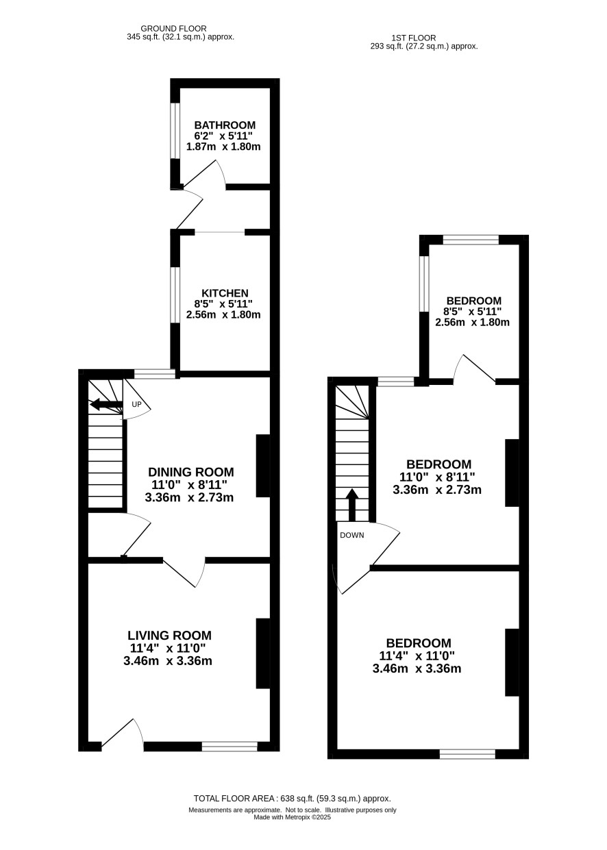
Vacant three bedroom mid terrace house with rear garden

This three bedroom mid terrace house extends to around 57 sq/m. It was previously let, and is now to be sold with vacant possession. The property benefits from double glazing and gas heating to radiators and now requires some improvement to realise its full potential. It is close to the town centre, near a comprehensive range of services and amenities. Ideal first time purchase for owner occupation or investment.

Tenure

Freehold

Ground floor

Living room, dining room, kitchen, bathroom

First floor

Three bedrooms

Outside

Small front garden, rear garden in need of attention

Council Tax Band

A

Note

This would suit a cash buyer due the single skin rear extension which may make it difficult to obtain a standard mortgage.

Viewings

Open viewings are arranged and the next are on Friday 21 November. To book an appointment please call the Norwich office.

Energy Efficiency Rating (EPC)

Current Rating C

Services

Interested parties are requested to make their own enquiries to the relevant authorities as to the availability of services.

Local Authority

East Suffolk Council

Solicitors

Spire Solicitors LLP (Norwich), Ref: Tracy Guest, Tel: 01603 886221

Important Notice to Prospective Buyers:

We draw your attention to the Special Conditions of Sale within the Legal Pack, referring to other charges in addition to the purchase price which may become payable. Such costs may include Search Fees, reimbursement of Sellers costs and Legal Fees, and Transfer Fees amongst others.

Additional Fees

Buyer's Premium - £960 inc VAT payable on exchange of contracts.

Administration Charge - £1200 inc VAT payable on exchange of contracts.

Disbursements - Please see the legal pack for any disbursements listed that may become payable by the purchaser on completion.

View Larger Map

Disclaimer: The map preview provided above is for general guidance only and may not accurately reflect the exact location or surrounding buildings. Prospective buyers and interested parties are strongly advised to independently verify the precise location and surroundings before bidding.