For Sale By Auction | 10:00, 10 December 2025 | Lot 70

Smokey Cottage, Carlton Road, Carlton, Saxmundham, Suffolk IP17 2QE

*Guide | £170,000 - £180,000 (plus fees)

  • Semi-Detached House
  • 2 Bedrooms
  • Tenure: Freehold

Call the team on 01473 558 888 for more information

Auction Date

Wed 10/12/2025

Auction Time

10:00

Auction Venue

Livestream Auction

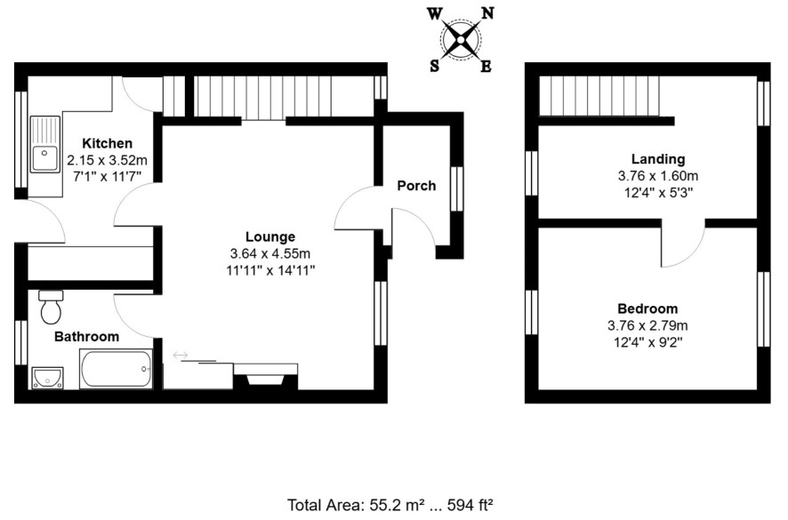
A delightful semi detached period cottage

Situated in the desirable village of Kelsale just a mile or so from Saxmundham and with easy access to the Suffolk Heritage Coast is this pretty semi detached cottage with off road parking and a garage. The property offers well presented two bedroom accommodation including a sitting room with a wood burning stove, double glazing and electric storage heating. With Sizewell just 6 miles away and a particularly strong demand for rental properties in the area, we believe this to be a first class investment opportunity.

Tenure

Freehold

Council Tax Band

A

Viewing

Open Viewing has been scheduled as follows: Tues 25th November at 10.30am BOOKING AN APPOINTMENT IS ESSENTIAL Please call 01473 558888 to confirm your attendance.

Energy Efficiency Rating (EPC)

Current Rating E

Services

Interested parties are requested to make their own enquiries to the relevant authorities as to the availability of services.

Local Authority

East Suffolk Council

Solicitors

Pulham and Co, Ref: Claire Wilson, Tel: 01728 602084

Important Notice to Prospective Buyers:

We draw your attention to the Special Conditions of Sale within the Legal Pack, referring to other charges in addition to the purchase price which may become payable. Such costs may include Search Fees, reimbursement of Sellers costs and Legal Fees, and Transfer Fees amongst others.

Additional Fees

Buyer's Premium - £1200 inc VAT payable on exchange of contracts.

Administration Charge - £1200 inc VAT payable on exchange of contracts.

Disbursements - Please see the legal pack for any disbursements listed that may become payable by the purchaser on completion.

View Larger Map

Disclaimer: The map preview provided above is for general guidance only and may not accurately reflect the exact location or surrounding buildings. Prospective buyers and interested parties are strongly advised to independently verify the precise location and surroundings before bidding.