For Sale By Auction | 10:00, 10 December 2025 | Lot 12

64-66 Westwick Street, Norwich, Norfolk NR2 4SZ

*Guide | £650,000 (plus fees)

  • Office
  • Tenure: Freehold

Call the team on 01603 505 100 for more information

Auction Date

Wed 10/12/2025

Auction Time

10:00

Auction Venue

Livestream Auction

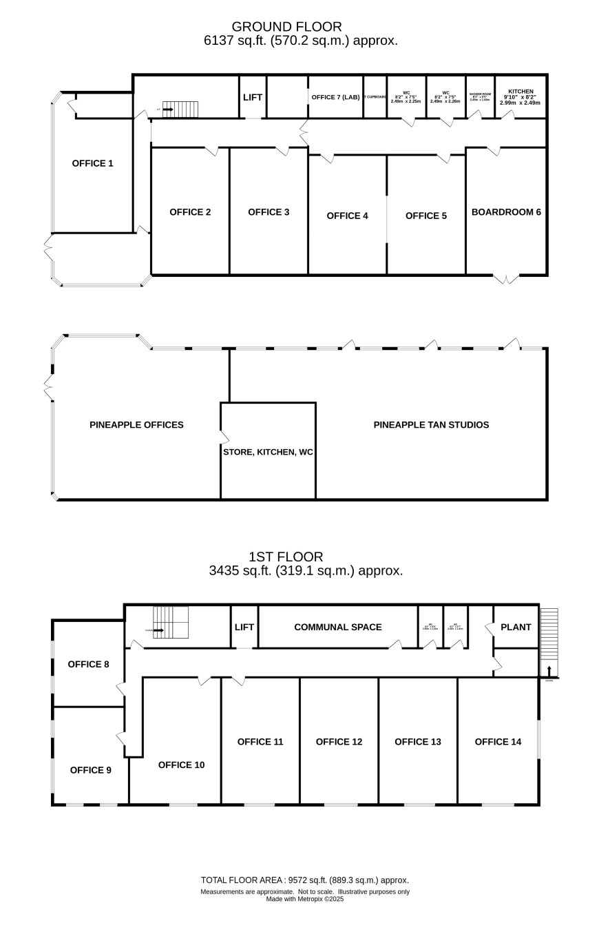
Two prominent commercial city premises with 30 parking spaces and direct frontage over River Wensum, currently let to separate tenants producing approximately £120,000 pa.

Prominently positioned on Westwick Street, just a short walk from Norwich city centre, this substantial property offers an exceptional opportunity for investors or developers. Occupying a plot measuring 0.43 acres (stms) the premises comprise two adjoining buildings and contain 15 commercial units spread over two floors with parking spaces for 30 vehicles. To the left is a two storey premises divided into 14 separate office spaces, with kitchen, two WCs, shower room and lift and measures approximately 638 sq/m (6867 sq/ft) and is partially let. Opposite is the single storey building measuring approximately 251 sqm (2701 sq/ft) and is leased in its entirety to a long-standing tenant. We have been informed that the current rental agreements indicate that the tenanted units produce a combined income of £121,500 pa The property offers excellent potential for refurbishment, redevelopment, or alternative uses including residential, subject to the necessary consents. Property offered for sale on instruction from receivers.

Tenure

Freehold

Rents

Units 1, 4, 5 Vacant Unit 2 - £725 pcm Unit 3 -£1,000 pcm Unit 6 - £750 pcm Unit 7 - Communal space Units 8,9,10,14 - £1,600 pcm Unit 11 - £750 pcm Unit 12 -£1,100 pcm Unit 13 -£1,200 pcm Right hand building: - £3,000 pcm TOTAL £10,125 pcm (£121,500 pa)

Note

Leases not seen by receivers or auctioneers. Due diligence to be applied by interested parties.

Viewings

Offered by arrangement. Please contact the Norwich Office to arrange.

Energy Efficiency Rating (EPC)

Current Rating C & D

Services

Interested parties are requested to make their own enquiries to the relevant authorities as to the availability of services.

Local Authority

Norwich City Council

Solicitors

DKLM LLP, Ref: Michael Adamson, Tel: 0207 549 7872

Important Notice to Prospective Buyers:

We draw your attention to the Special Conditions of Sale within the Legal Pack, referring to other charges in addition to the purchase price which may become payable. Such costs may include Search Fees, reimbursement of Sellers costs and Legal Fees, and Transfer Fees amongst others.

Additional Fees

Buyer's Premium - £1260 inc VAT payable on exchange of contracts.

Administration Charge - £1200 inc VAT payable on exchange of contracts.

Disbursements - Please see the legal pack for any disbursements listed that may become payable by the purchaser on completion.

View Larger Map

Disclaimer: The map preview provided above is for general guidance only and may not accurately reflect the exact location or surrounding buildings. Prospective buyers and interested parties are strongly advised to independently verify the precise location and surroundings before bidding.