For Sale By Auction | 10:00, 10 December 2025 | Lot 53a

The Courtyard, Main Road, Tydd Gote, Spalding, Lincolnshire PE13 5QG

*Guide | £70,000 - £90,000 (plus fees)

  • Plot
  • Tenure: Freehold

Call the team on 01733 889833 for more information

Auction Date

Wed 10/12/2025

Auction Time

10:00

Auction Venue

Livestream Auction

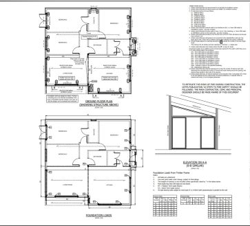
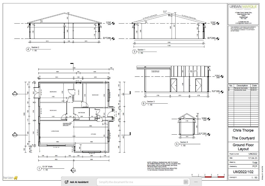
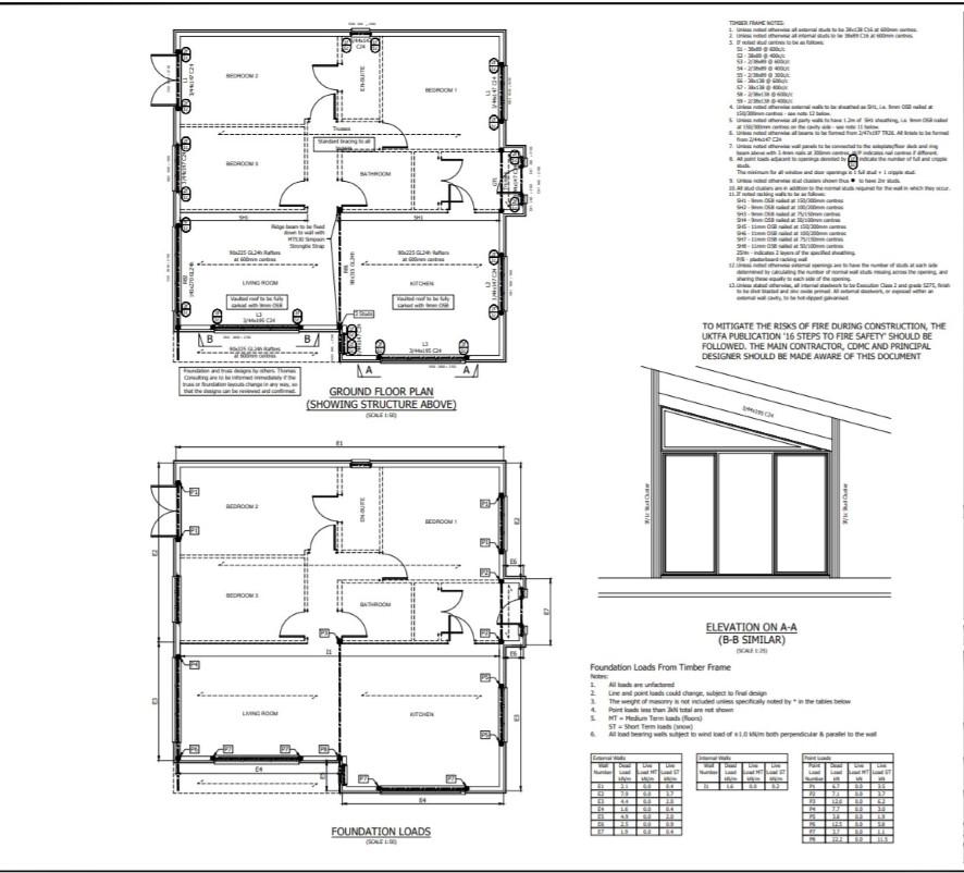
A 0.17 of an acre building plot with permission for a three bedroom detached bungalow in a rural location.

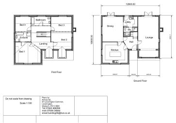
This building plot has full planning permission for a three bedroom bungalow ref South Holland District Council ref H21-1019-22 1. The property is located back from the road with gated access to the wide access driveway and field views at the rear. The plot had a previous outline permission for a detached four bedroom house however the planning permission has now elapsed. Tydd Gote is located between Wisbech and Long Sutton both offering facilities.

Tenure

Freehold

Structural engineering & further documentation included within the online legal pack :- •Structural Engineering & Calculations •Design Drawings •Timber Frame Manufacture Drawings •Timber Frame Structural Calculations •Engineered Drainage Statement •Soakaway Calculations •Engineered External Ground Levels •Engineered Foundation Plan & Footing Details

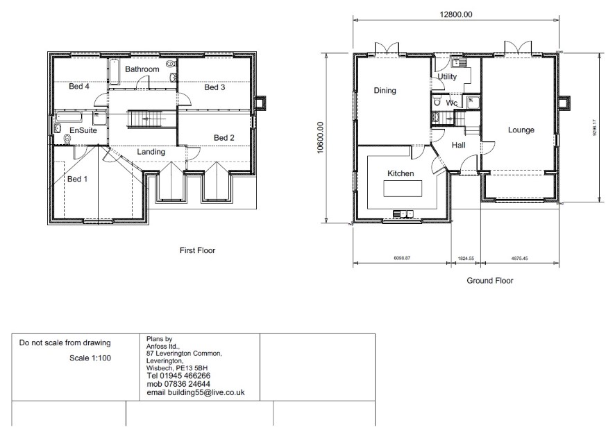
Proposed accommodation - 3 bedroom bungalow

Hall, lounge, kitchen, three bedrooms one with en-suite and a family bathroom.

Services

Interested parties are requested to make their own enquiries to the relevant authorities as to the availability of services.

Local Authority

South Holland District Council

Solicitors

Setfords (Guildford), Ref: Stacey Bell, Tel: 01733 979 080

Important Notice to Prospective Buyers:

We draw your attention to the Special Conditions of Sale within the Legal Pack, referring to other charges in addition to the purchase price which may become payable. Such costs may include Search Fees, reimbursement of Sellers costs and Legal Fees, and Transfer Fees amongst others.

Additional Fees

Buyer's Premium - £1200 inc VAT payable on exchange of contracts.

Administration Charge - £1200 inc VAT payable on exchange of contracts.

Disbursements - Please see the legal pack for any disbursements listed that may become payable by the purchaser on completion.

View Larger Map

Disclaimer: The map preview provided above is for general guidance only and may not accurately reflect the exact location or surrounding buildings. Prospective buyers and interested parties are strongly advised to independently verify the precise location and surroundings before bidding.