For Sale By Auction | 10:00, 11 February 2026 | Lot 68

Knotty Kott, Bank Street, Pulham Market, Diss, Norfolk IP21 4TG

*Guide | £100,000 - £120,000 (plus fees)

  • Cottage
  • 2 Bedrooms
  • Tenure: Freehold

Call the team on 01603 505 100 for more information

Auction Date

Wed 11/02/2026

Auction Time

10:00

Auction Venue

Livestream Auction

Tenanted detached Grade II listed thatched cottage in the centre of the desirable village of Pulham Market producing £750 pcm

Detached thatched Grade II listed cottage situated in the heart of the picturesque village of Pulham Market. Situated close to the village green this desirable property offers a wealth of character features to include exposed timbers and open fireplace and is currently let on an AST producing £9,000 pa (£750 pcm) In need of some modernisation the cottage offers two double bedrooms along with sitting room and kitchen. Viewing strongly recommended.

Tenure

Freehold

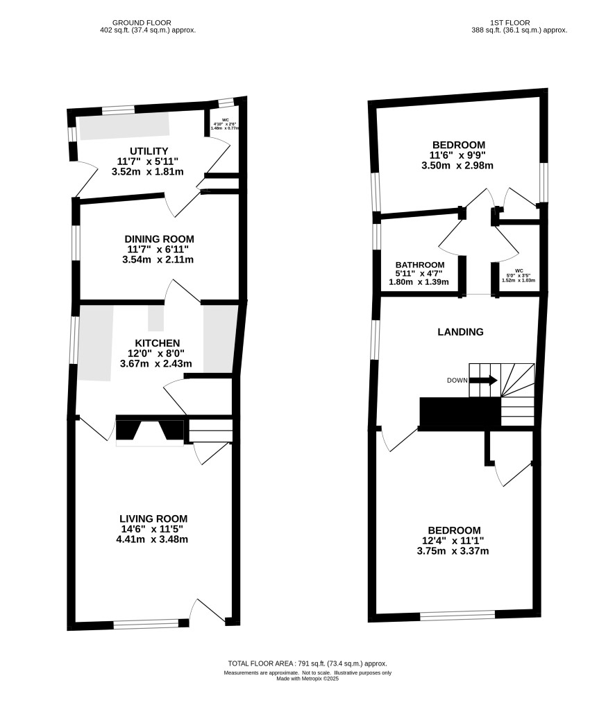
Ground floor

Sitting Room, Kitchen, Cloakroom

First floor

Landing, two bedrooms, bathroom

Viewings

Viewings are being held strictly by appointment only in arrangement with the tenant and are offered on the following days: Thursday 29th January Please contact the Norwich Office to book your appointment time

Energy Efficiency Rating (EPC)

Current Rating E

Services

Interested parties are requested to make their own enquiries to the relevant authorities as to the availability of services.

Local Authority

South Norfolk Council

Solicitors

Ashtons Legal (Norwich), Ref: Claire Beckett, Tel: 01603 703078

Important Notice to Prospective Buyers:

We draw your attention to the Special Conditions of Sale within the Legal Pack, referring to other charges in addition to the purchase price which may become payable. Such costs may include Search Fees, reimbursement of Sellers costs and Legal Fees, and Transfer Fees amongst others.

Additional Fees

Buyer's Premium - £960 inc VAT payable on exchange of contracts.

Administration Charge - £1200 inc VAT payable on exchange of contracts.

Disbursements - Please see the legal pack for any disbursements listed that may become payable by the purchaser on completion.

View Larger Map

Disclaimer: The map preview provided above is for general guidance only and may not accurately reflect the exact location or surrounding buildings. Prospective buyers and interested parties are strongly advised to independently verify the precise location and surroundings before bidding.