For Sale By Auction | 10:00, 11 February 2026 | Lot 83

18 Albany Road, Wisbech, Cambridgeshire PE13 3AY

*Guide | £120,000 - £140,000 (plus fees)

  • Semi-Detached House
  • 3 Bedrooms
  • Tenure: Freehold

Call the team on 01733 889833 for more information

Auction Date

Wed 11/02/2026

Auction Time

10:00

Auction Venue

Livestream Auction

A three/four bedroom semi detached house ideal for a landlord/investor with a tenant providing £895 pcm.

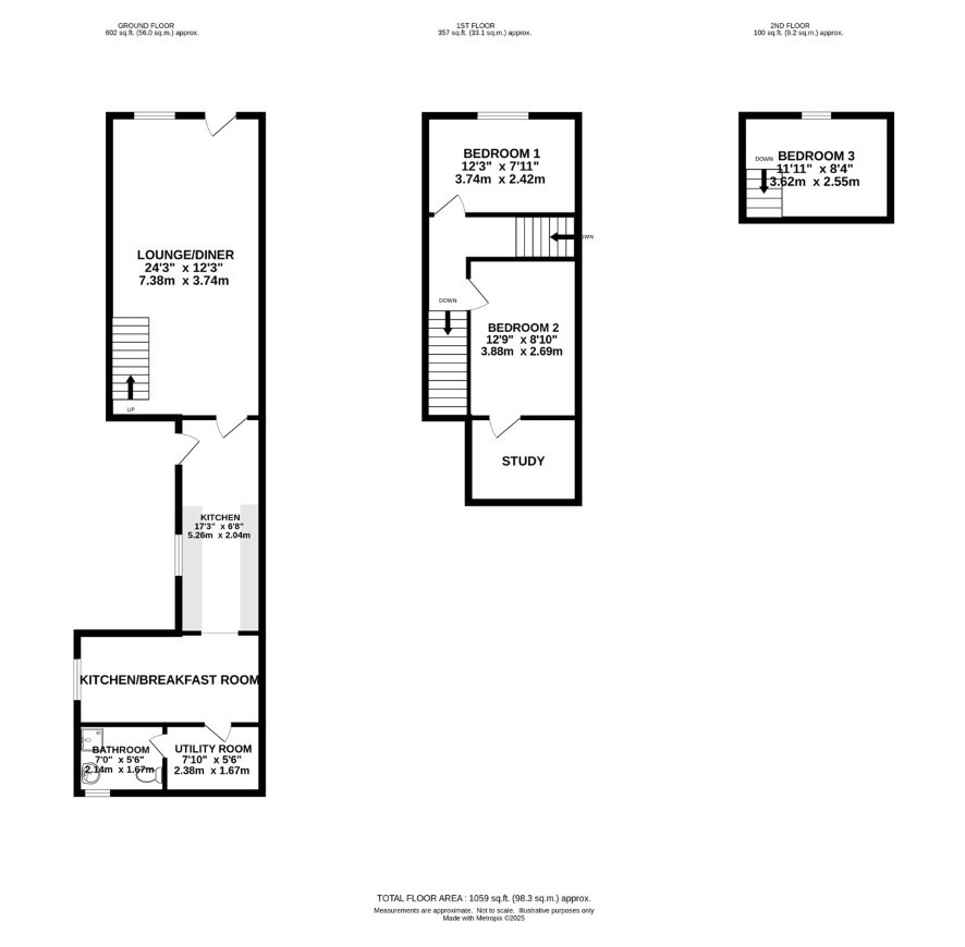
This 3/4 bedroom semi detached house has accommodation on three levels and is tenanted with a rental income of £895 pcm. The accommodation comprises a lounge/diner, kitchen, utility and a ground floor shower room. On the first floor you can find two bedrooms and a study/bedroom with a further bedroom on the second floor. Wisbech offers a variety of facilities and the A47 linking into Kings Lynn and Peterborough.

Tenure

Freehold

Ground floor

Lounge/diner, kitchen, utility and a shower room.

First floor

Landing, two bedrooms and a study/bedroom.

Second floor

Bedroom 3.

Council Tax Band

A

Energy Efficiency Rating (EPC)

Current Rating E

Services

Interested parties are requested to make their own enquiries to the relevant authorities as to the availability of services.

Local Authority

Fenland District Council

Solicitors

Leathes Prior (The Close), Ref: Joanna Allen, Tel: 01603 281009

Important Notice to Prospective Buyers:

We draw your attention to the Special Conditions of Sale within the Legal Pack, referring to other charges in addition to the purchase price which may become payable. Such costs may include Search Fees, reimbursement of Sellers costs and Legal Fees, and Transfer Fees amongst others.

Additional Fees

Buyer's Premium - £1200 inc VAT payable on exchange of contracts.

Administration Charge - £1200 inc VAT payable on exchange of contracts.

Disbursements - Please see the legal pack for any disbursements listed that may become payable by the purchaser on completion.

View Larger Map

Disclaimer: The map preview provided above is for general guidance only and may not accurately reflect the exact location or surrounding buildings. Prospective buyers and interested parties are strongly advised to independently verify the precise location and surroundings before bidding.