For Sale By Auction | 10:00, 11 February 2026 | Lot 97

45 Upper Cliff Road, Gorleston, Great Yarmouth, Norfolk NR31 6AH

*Guide | £110,000 - £130,000 (plus fees)

  • Terraced House
  • 3 Bedrooms
  • Tenure: Freehold

Call the team on 01603 505 100 for more information

Auction Date

Wed 11/02/2026

Auction Time

10:00

Auction Venue

Livestream Auction

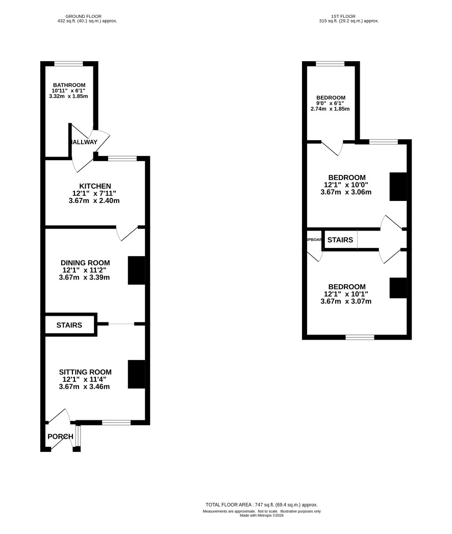
Vacant three bedroom mid terrace house extending to around 76 sq/m

This three bedroom mid terraced property was previously let at £550 pcm (£6,600 pa), and is now to be sold with vacant possession. The property benefits from gas central heating, is mostly double glazed and requires some improvement to realise its full potential. The property is located close to the town centre near to a comprehensive range of amenities and to the beach. It benefits from a modern kitchen and bathroom and good epc C rating making it ideal as a buy to let investment or for owner occupation.

Tenure

Freehold

Ground floor

Porch, lounge / diner, kitchen, rear lobby, bathroom

First floor

Three bedrooms with third through second

Outside

Small front garden for bin storage, long rear garden with timber shed

Council Tax Band

A

Viewings

Open viewings are arranged and the next are on Wednesday 21 January. To book an appointment please call the Norwich office.

Energy Efficiency Rating (EPC)

Current Rating C

Services

Interested parties are requested to make their own enquiries to the relevant authorities as to the availability of services.

Local Authority

Great Yarmouth Borough Council

Solicitors

HKB Wiltshires (Great Yarmouth), Ref: Samantha Brannigan, Tel: 01493 855676

Important Notice to Prospective Buyers:

We draw your attention to the Special Conditions of Sale within the Legal Pack, referring to other charges in addition to the purchase price which may become payable. Such costs may include Search Fees, reimbursement of Sellers costs and Legal Fees, and Transfer Fees amongst others.

Additional Fees

Administration Charge - £1200 inc VAT payable on exchange of contracts.

Disbursements - Please see the legal pack for any disbursements listed that may become payable by the purchaser on completion.

View Larger Map

Disclaimer: The map preview provided above is for general guidance only and may not accurately reflect the exact location or surrounding buildings. Prospective buyers and interested parties are strongly advised to independently verify the precise location and surroundings before bidding.