For Sale By Auction | 10:00, 11 February 2026 | Lot 23

Land lying to the south of Poplar House, Mill Green, Edwardstone, Sudbury, Suffolk CO10 5PX

*Guide | £300,000 - £350,000 (plus fees)

  • Land
  • Tenure: Freehold

Call the team on 01473 558 888 for more information

Auction Date

Wed 11/02/2026

Auction Time

10:00

Auction Venue

Livestream Auction

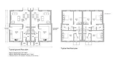
A 0.38 acre building plot with Planning Permission for four dwellings

Situated in the highly desirable village of Edwardstone some seven miles from both the market towns of Sudbury and Hadleigh is this 0.38 acre building plot with full Planning Permission for four semi detached houses with ten parking spaces. Planning Permission was granted by Babergh District Council under Application Reference DC/23/02128 and each unit will offer 110 sq. m. of accommodation including a spacious living/dining room and three bedrooms (one en-suite). Full details are available on the Council's planning portal. The location alone would provide high residual values and this is truly a rare development opportunity.

Tenure

Freehold

Viewing

Any reasonable time during daylight hours. Prospective purchasers should note that no liability can be held against either the vendor or the Agents, Auction House East Anglia as Auctioneers, in respect of any viewing of the land. All persons viewing should be aware that they enter the site entirely at their own risk.

Services

Interested parties are requested to make their own enquiries to the relevant authorities as to the availability of services.

Local Authority

Babergh District Council

Solicitors

Andrew Jacobs Conveyancing, Ref: Andrew Jacobs, Tel: 01473 333323

Important Notice to Prospective Buyers:

We draw your attention to the Special Conditions of Sale within the Legal Pack, referring to other charges in addition to the purchase price which may become payable. Such costs may include Search Fees, reimbursement of Sellers costs and Legal Fees, and Transfer Fees amongst others.

Additional Fees

Buyer's Premium - £1500 inc VAT payable on exchange of contracts.

Administration Charge - £1200 inc VAT payable on exchange of contracts.

Disbursements - Please see the legal pack for any disbursements listed that may become payable by the purchaser on completion.

View Larger Map

Disclaimer: The map preview provided above is for general guidance only and may not accurately reflect the exact location or surrounding buildings. Prospective buyers and interested parties are strongly advised to independently verify the precise location and surroundings before bidding.