For Sale By Auction | 10:00, 11 February 2026 | Lot 64

47 Lower Olland Street, Bungay, Norfolk NR35 1BY

*Guide | £120,000 - £130,000 (plus fees)

  • Terraced House
  • 2 Bedrooms
  • Tenure: Freehold

Call the team on 01603 505 100 for more information

Auction Date

Wed 11/02/2026

Auction Time

10:00

Auction Venue

Livestream Auction

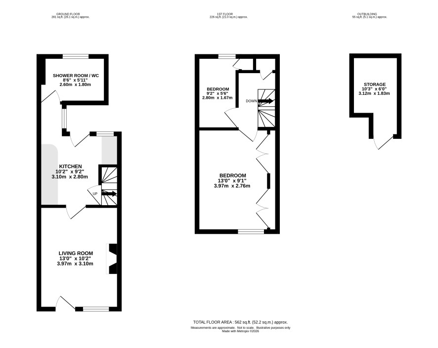
Two bedroom mid-terrace house ideal for first time buyer or investor

This two bedroom mid-terrace house is situated on the edge of the popular market town of Bungay, within walking distance of the town centre and its amenities. The accommodation comprises a sitting room with a front-facing aspect and feature brick fireplace, leading through to the kitchen with granite work surfaces and an integral oven and hob. The kitchen gives access to the WC/shower room, fitted with a walk-in shower. To the first floor are two bedrooms off a landing. The main bedroom benefits from large fitted wardrobes. The property has a bisected rear garden with an outbuilding providing additional storage.

Tenure

Freehold

Accommodation

Lounge, two bedrooms, kitchen, shower room/WC

Outside

Bisected rear garden with outbuilding

Council Tax Band

A

Viewing

Viewings are being offered by appointment only on the following days Monday 26th January{tab}{tab} Thursday 29th January{tab} Monday 2nd February{tab}{tab} Wednesday 4th February{tab} Please contact the Norwich Office to book your appointment time

Energy Efficiency Rating (EPC)

Current Rating C

Services

Interested parties are requested to make their own enquiries to the relevant authorities as to the availability of services.

Local Authority

East Suffolk Council

Solicitors

Spire Solicitors LLP (Norwich), Ref: Tracy Guest, Tel: 01603 886221

Important Notice to Prospective Buyers:

We draw your attention to the Special Conditions of Sale within the Legal Pack, referring to other charges in addition to the purchase price which may become payable. Such costs may include Search Fees, reimbursement of Sellers costs and Legal Fees, and Transfer Fees amongst others.

Additional Fees

Buyer's Premium - £600 inc VAT payable on exchange of contracts.

Administration Charge - £1200 inc VAT payable on exchange of contracts.

Disbursements - Please see the legal pack for any disbursements listed that may become payable by the purchaser on completion.

View Larger Map

Disclaimer: The map preview provided above is for general guidance only and may not accurately reflect the exact location or surrounding buildings. Prospective buyers and interested parties are strongly advised to independently verify the precise location and surroundings before bidding.