For Sale By Auction | 10:00, 11 February 2026 | Lot 28

Primrose Cottage, Bruisyard Road, Rendham, Saxmundham, Suffolk IP17 2AG

*Guide | £170,000 - £190,000 (plus fees)

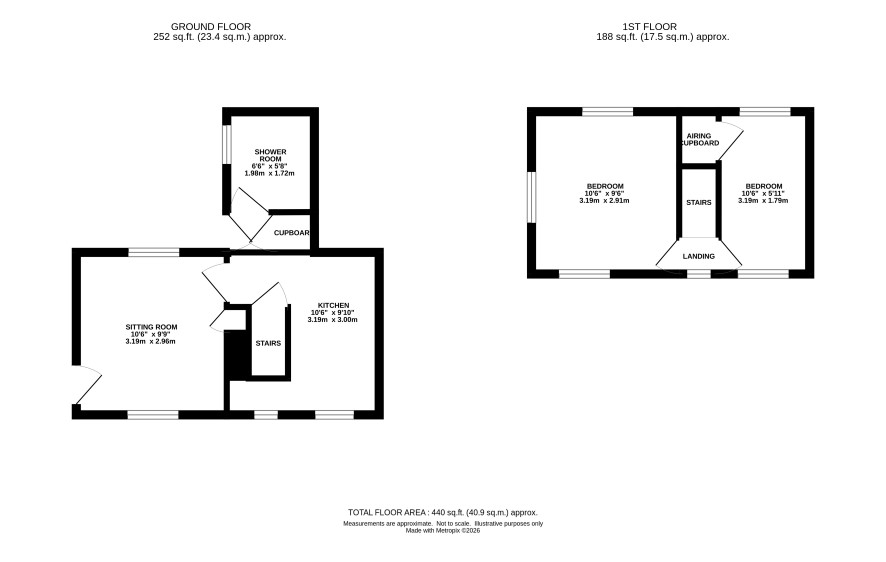
  • Detached House
  • 2 Bedrooms
  • Tenure: Freehold

Call the team on 01473 558 888 for more information

Auction Date

Wed 11/02/2026

Auction Time

10:00

Auction Venue

Livestream Auction

A charming detached cottage full of character

Situated in the delightful village of Rendham some 2 and a half miles from Saxmundaham is this delightful detached cottage with a good deal of period individuality. The property offers two bedroom accommodation with an exposed brick fireplace and wood burner in the sitting room, double glazing, solar panels and an air source heat pump serving radiators. To the rear is a south facing courtyard style garden and a storage shed with power and light connected. This is an ideal opportunity for an owner occupier or as an investment with huge rental demand in the area due to Sizewell C.

Tenure

Freehold

Viewing

Open viewing dates/times to be confirmed.

Council Tax Band

B

Energy Efficiency Rating (EPC)

Current Rating C

Services

Interested parties are requested to make their own enquiries to the relevant authorities as to the availability of services.

Local Authority

East Suffolk Council

Solicitors

Watkins Stewart and Ross, Ref: Rebecca Grimsey, Tel: 01473 226 266

Important Notice to Prospective Buyers:

We draw your attention to the Special Conditions of Sale within the Legal Pack, referring to other charges in addition to the purchase price which may become payable. Such costs may include Search Fees, reimbursement of Sellers costs and Legal Fees, and Transfer Fees amongst others.

Additional Fees

Buyer's Premium - £1200 inc VAT payable on exchange of contracts.

Administration Charge - £1200 inc VAT payable on exchange of contracts.

Disbursements - Please see the legal pack for any disbursements listed that may become payable by the purchaser on completion.

View Larger Map

Disclaimer: The map preview provided above is for general guidance only and may not accurately reflect the exact location or surrounding buildings. Prospective buyers and interested parties are strongly advised to independently verify the precise location and surroundings before bidding.