For Sale By Auction | 10:00, 11 February 2026 | Lot 59a

22 Lynn Street, Swaffham, Norfolk PE37 7AX

*Guide | £70,000 - £80,000 (plus fees)

  • Shop
  • Tenure: Freehold

Call the team on 01553 777 773 for more information

Auction Date

Wed 11/02/2026

Auction Time

10:00

Auction Venue

Livestream Auction

A terraced former shoe repair and key cutting shop with accommodation on two levels ideal for a change of use to residential subject to planning permission.

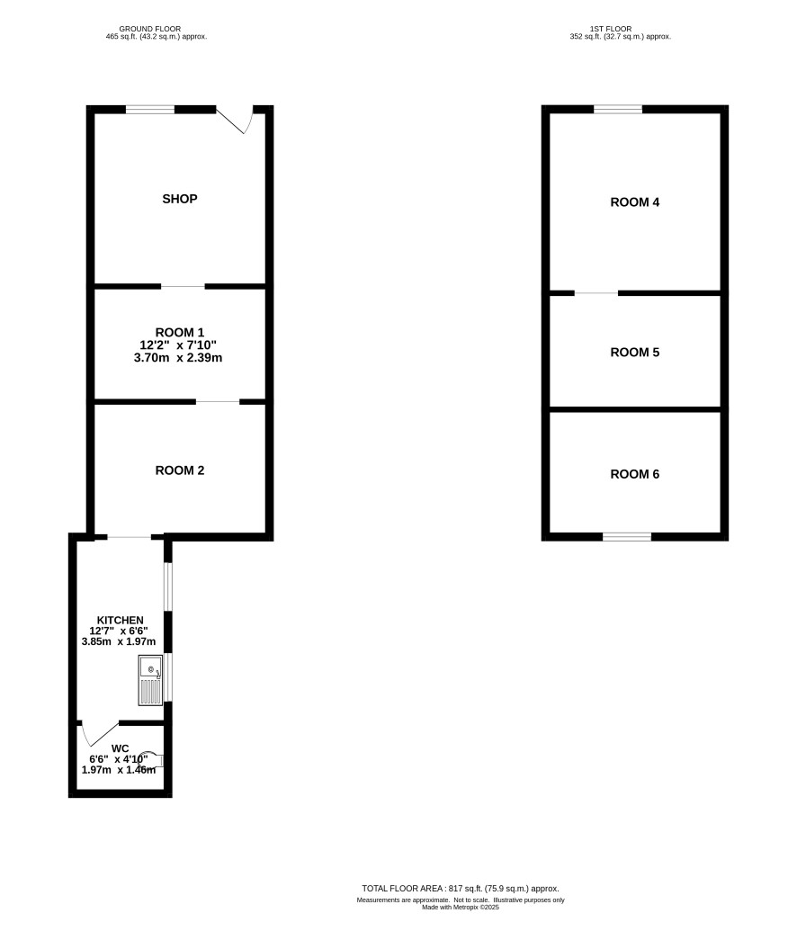
This former shop offers accommodation to two levels and would be ideal for a change of use with the necessary planning permission into a two bedroom cottage with a first floor bathroom and two reception rooms, kitchen and a w.c. The property also has a garden at rear. The market town of Swaffham offers numerous facilities and is located between Norwich and Kings Lynn. Note The property has no staircase to the first floor.

Tenure

Freehold

Ground floor

Shop, work room, store, kitchen and a w.c.

First floor

Three first floor rooms

Outside.

Garden at rear

Energy Efficiency Rating (EPC)

Current Rating F

Services

Interested parties are requested to make their own enquiries to the relevant authorities as to the availability of services.

Local Authority

Breckland Council

Solicitors

Hayes and Storr (Fakenham), Ref: Emily Mills

Offered in association with

Cruso & Wilkin

Important Notice to Prospective Buyers:

We draw your attention to the Special Conditions of Sale within the Legal Pack, referring to other charges in addition to the purchase price which may become payable. Such costs may include Search Fees, reimbursement of Sellers costs and Legal Fees, and Transfer Fees amongst others.

Additional Fees

Buyer's Premium - £1200 inc VAT payable on exchange of contracts.

Administration Charge - £1200 inc VAT payable on exchange of contracts.

Disbursements - Please see the legal pack for any disbursements listed that may become payable by the purchaser on completion.

View Larger Map

Disclaimer: The map preview provided above is for general guidance only and may not accurately reflect the exact location or surrounding buildings. Prospective buyers and interested parties are strongly advised to independently verify the precise location and surroundings before bidding.