For Sale By Auction | 10:00, 11 February 2026 | Lot 76a

9A Fairfax Way, March, Cambridgeshire PE15 9HP

*Guide | £180,000 - £200,000 (plus fees)

  • Detached Bungalow
  • 3 Bedrooms
  • Tenure: Freehold

Call the team on 01733 889833 for more information

Auction Date

Wed 11/02/2026

Auction Time

10:00

Auction Venue

Livestream Auction

Well presented three bedroom home with en-suite, driveway & enclosed garden

The property provides three well-proportioned bedrooms, including a principal bedroom with en-suite facilities, together with a family bathroom. A modern kitchen/breakfast room complements the bright and spacious lounge, creating practical and comfortable accommodation suitable for both everyday living and entertaining. Externally, the property benefits from an enclosed rear garden offering a good degree of privacy, along with a driveway providing off-road parking. The property originally had planning for a single garage to the side.

Tenure

Freehold

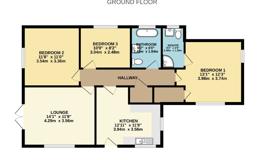
Ground floor

Kitchen, Living Room, Family Bathroom, Three Bedrooms including Bedroom One with En-Suite

Council Tax Band

C

Energy Efficiency Rating (EPC)

Current Rating B

Services

Interested parties are requested to make their own enquiries to the relevant authorities as to the availability of services.

Local Authority

Fenland District Council

Solicitors

Ward Gethin Archer (Kings Lynn - Regis Place), Ref: Alix Cocks, Tel: 01760 727014

Important Notice to Prospective Buyers:

We draw your attention to the Special Conditions of Sale within the Legal Pack, referring to other charges in addition to the purchase price which may become payable. Such costs may include Search Fees, reimbursement of Sellers costs and Legal Fees, and Transfer Fees amongst others.

Additional Fees

Buyer's Premium - £1200 inc VAT payable on exchange of contracts.

Administration Charge - £1200 inc VAT payable on exchange of contracts.

Disbursements - Please see the legal pack for any disbursements listed that may become payable by the purchaser on completion.

View Larger Map

Disclaimer: The map preview provided above is for general guidance only and may not accurately reflect the exact location or surrounding buildings. Prospective buyers and interested parties are strongly advised to independently verify the precise location and surroundings before bidding.