Sold Prior | Lot 39

1 , 2 & 3 White Horse Common Cottages, Happisburgh Road, White Horse Common, North Walsham, Norfolk NR28 9NG

Sold Prior

  • Cottage
  • 9 Bedrooms
  • Tenure: Freehold

Call the team on 01603 505 100 for more information

Auction Date

Wed 11/02/2026

Auction Time

10:00

Auction Venue

Livestream Auction

A row of three cottages located in a rural area to the east side of North Walsham currently let on ASTs producing £1,800 pcm

The cottages all three bedrooms are being offered for sale in this auction. All three cottages are similar, there are two end terraced and one mid terraced. All tenanted for a number of years on AST agreements and are producing £600.00 pcm each (total of £21,600 pa). The tenants would like to remain and are currently managed by an agent. Each cottage is in need of some refurbishment and all have three bedrooms with upstairs bathroom and has designated parking to the front with further front and rear garden. This would make an ideal investment opportunity for a purchaser/landlord. Located in the hamlet of White Horse Common, the cottages have wide reaching field views whilst being just a couple of minutes drive from North Walsham town centre with further amenities.

Tenure

Freehold

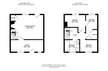
1 White Horse Common Cottages

Ground Floor: Kitchen with sitting/dining area and stairs First Floor: Three bedrooms, bathroom

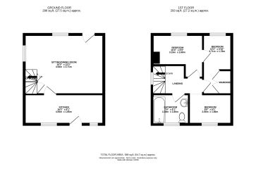
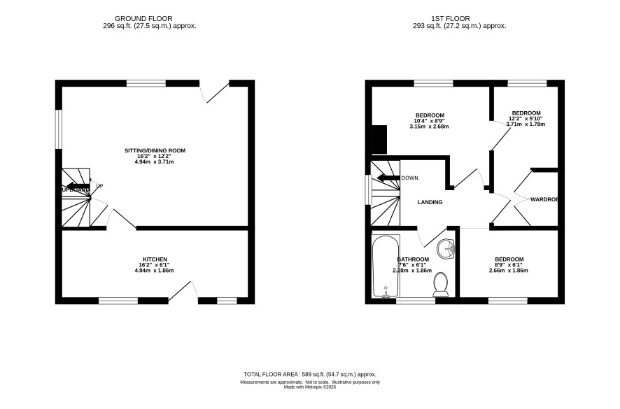
2 White Horse Common Cottages

Ground Floor: Hall, sitting room, kitchen First Floor: Landing, three bedrooms, bathroom

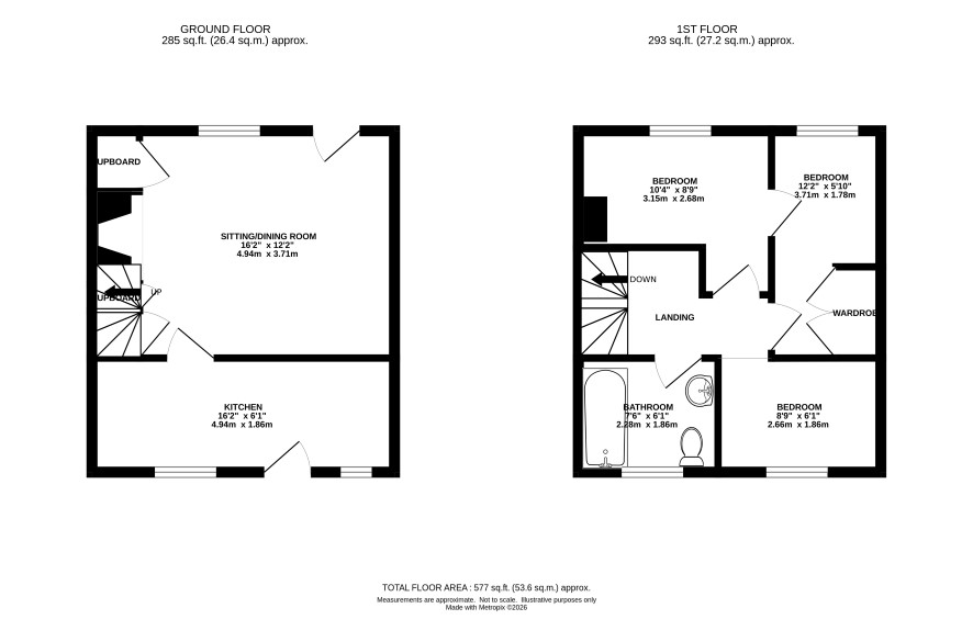
3 White Horse Common Cottages

Ground Floor: Hall, sitting room, kitchen First Floor, landing, three bedrooms, bathroom

Outside

There are front and rear gardens and designated parking areas.

Services

The properties use a septic tank located in the garden of no 3.

Council Tax Bands

No 1: A No 2: B No 3: B

Viewings

Viewings are being offered strictly by appointment only. Please contact the Norwich office to book your appointment.

Energy Efficiency Rating (EPC)

Current Rating E, D, E

Services

Interested parties are requested to make their own enquiries to the relevant authorities as to the availability of services.

Local Authority

North Norfolk District Council

Solicitors

Ashtons Legal (Norwich), Ref: Claire Beckett, Tel: 01603 703078

Important Notice to Prospective Buyers:

We draw your attention to the Special Conditions of Sale within the Legal Pack, referring to other charges in addition to the purchase price which may become payable. Such costs may include Search Fees, reimbursement of Sellers costs and Legal Fees, and Transfer Fees amongst others.

Additional Fees

Buyer's Premium - £1140 inc VAT payable on exchange of contracts.

Administration Charge - £1200 inc VAT payable on exchange of contracts.

Disbursements - Please see the legal pack for any disbursements listed that may become payable by the purchaser on completion.

View Larger Map

Disclaimer: The map preview provided above is for general guidance only and may not accurately reflect the exact location or surrounding buildings. Prospective buyers and interested parties are strongly advised to independently verify the precise location and surroundings before bidding.