For Sale By Auction | 10:00, 25 March 2026 | Lot 103

Southdene, The Street, Eyke, Woodbridge, Suffolk IP12 2QG

*Guide | £190,000 - £210,000 (plus fees)

  • Cottage
  • 3 Bedrooms
  • Tenure: Freehold

Call the team on 01473 558 888 for more information

Auction Date

Wed 25/03/2026

Auction Time

10:00

Auction Venue

Livestream Auction

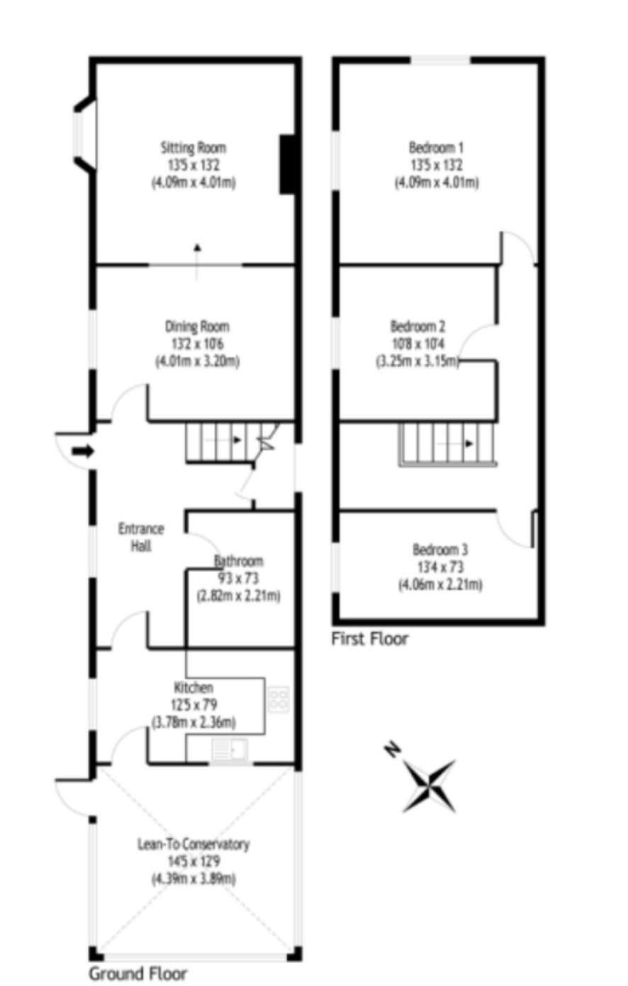
Detached three bedroom cottage situated in the Village of Eyke, just a short drive from Woodbridge, Suffolk.

A charming three-bedroom detached cottage offering generous living space and excellent potential. The property features a large reception/dining room, kitchen, conservatory and a downstairs bathroom. Well suited to buyers looking to add value, the cottage offers scope for extension and further enhancement, subject to the necessary planning permissions. Eyke is a peaceful and well-regarded Suffolk village, offering a friendly community feel and attractive rural surroundings. Conveniently located close to Woodbridge, it provides easy access to local amenities, schools and transport links while retaining its quiet village charm.

Tenure

Freehold

OPEN HOUSE DATES

If you would like to attend any of the dates below, please ensure you confirm attendance with the office. 6th March 11:00am 13th March 10:00am

Energy Efficiency Rating (EPC)

Current Rating E

Services

Interested parties are requested to make their own enquiries to the relevant authorities as to the availability of services.

Local Authority

East Suffolk Council

Solicitors

Wolferstans, Ref: Ebenezer Ola, Tel: 01752 292318

Important Notice to Prospective Buyers:

We draw your attention to the Special Conditions of Sale within the Legal Pack, referring to other charges in addition to the purchase price which may become payable. Such costs may include Search Fees, reimbursement of Sellers costs and Legal Fees, and Transfer Fees amongst others.

Additional Fees

Buyer's Premium - £1200 inc VAT payable on exchange of contracts.

Administration Charge - £1200 inc VAT payable on exchange of contracts.

Disbursements - Please see the legal pack for any disbursements listed that may become payable by the purchaser on completion.

View Larger Map

Disclaimer: The map preview provided above is for general guidance only and may not accurately reflect the exact location or surrounding buildings. Prospective buyers and interested parties are strongly advised to independently verify the precise location and surroundings before bidding.