For Sale By Auction | 10:00, 25 March 2026 | Lot 32

65 and 67 Helena Road, Norwich, Norfolk NR2 3BY

*Guide | £300,000 - £350,000 (plus fees)

  • Block of Apartments
  • 5 Bedrooms
  • Tenure: Freehold

Call the team on 01603 505 100 for more information

Auction Date

Wed 25/03/2026

Auction Time

10:00

Auction Venue

Livestream Auction

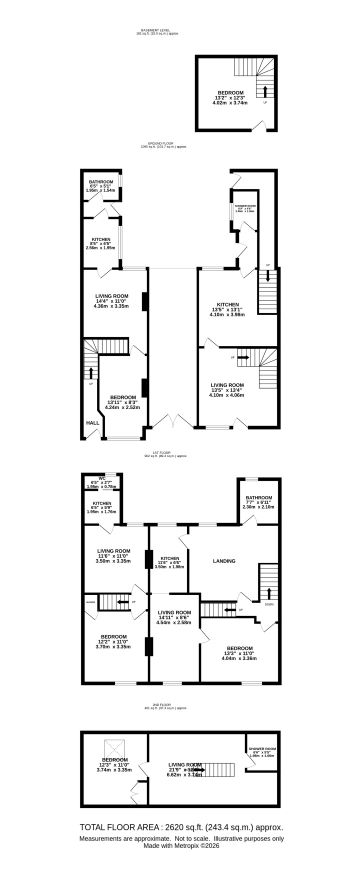
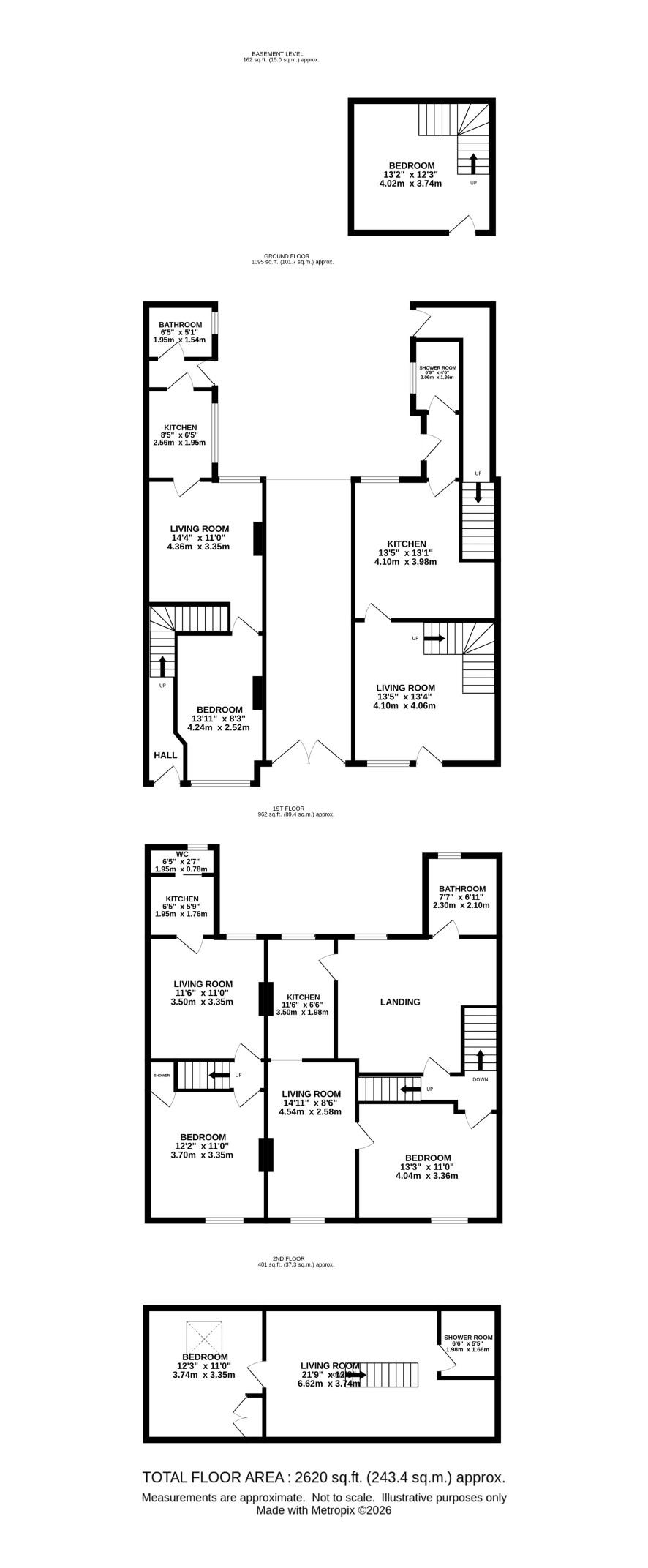
High yielding freehold residential investment producing £38,100 pa. Five let self contained flats

This property is arranged as five self contained flats. Four are one bedroom flats and one is an attic flat. All the flats are double glazed and are individually heated. 65 and 67 are on two separate titles and are to be sold as one lot. Currently all are let producing £3,175 pcm (£38,100 pa). Flat 65 is let at £595 pcm (£7,140 pa) Flat 65A is let at £595 pcm (£7,140 pa) Flat 67 is let at £695 pcm (£8,340 pa) Flat 67A is let at £695 pcm (£8,340 pa) Flat 67B is let at £595 pcm (£7,140 pa) This is an ideal opportunity for an investor looking for a high yielding investment.

Tenure

Freehold

65

Ground floor flat: lounge, bedroom, kitchen, bathroom EPC D

65 A

First floor flat: hall, landing, sitting room, bedroom, kitchen, shower room EPC D

67

Ground floor flat: entrance lobby, lounge, kitchen, shower room basement: bedroom EPC E

67 A

First floor flat: landing, sitting room, bedroom, kitchen, bathroom EPC D

67 B

Attic flat: open plan living room with kitchen area, bedroom, shower room EPC E

Outside

Communal gardens with brickweave terrace

Council Tax Band

A

Viewings

Viewings are arranged in conjunction with the tenants. There are three viewing days as follows: Friday 6 March Tuesday 10 March Friday 20 March No further dates will be offered. Please call the Norwich office to book the next available appointment.

Energy Efficiency Rating (EPC)

Current Rating D and E

Services

Interested parties are requested to make their own enquiries to the relevant authorities as to the availability of services.

Local Authority

Norwich City Council

Solicitors

Spire Solicitors LLP (Norwich), Ref: Tracy Guest, Tel: 01603 886221

Important Notice to Prospective Buyers:

We draw your attention to the Special Conditions of Sale within the Legal Pack, referring to other charges in addition to the purchase price which may become payable. Such costs may include Search Fees, reimbursement of Sellers costs and Legal Fees, and Transfer Fees amongst others.

Additional Fees

Administration Charge - £1200 inc VAT payable on exchange of contracts.

Disbursements - Please see the legal pack for any disbursements listed that may become payable by the purchaser on completion.

View Larger Map

Disclaimer: The map preview provided above is for general guidance only and may not accurately reflect the exact location or surrounding buildings. Prospective buyers and interested parties are strongly advised to independently verify the precise location and surroundings before bidding.