For Sale By Auction | 10:00, 25 March 2026 | Lot 8

Land adj 9 Cheyham Mount, Norwich, Norfolk NR4 6HJ

*Guide | £80,000 - £100,000 (plus fees)

  • Land
  • Tenure: Freehold

Call the team on 01603 505 100 for more information

Auction Date

Wed 25/03/2026

Auction Time

10:00

Auction Venue

Livestream Auction

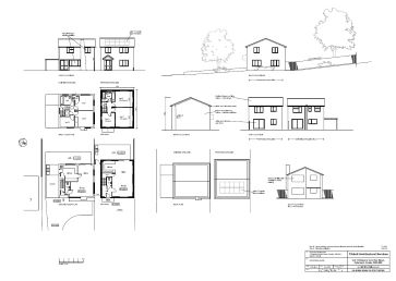
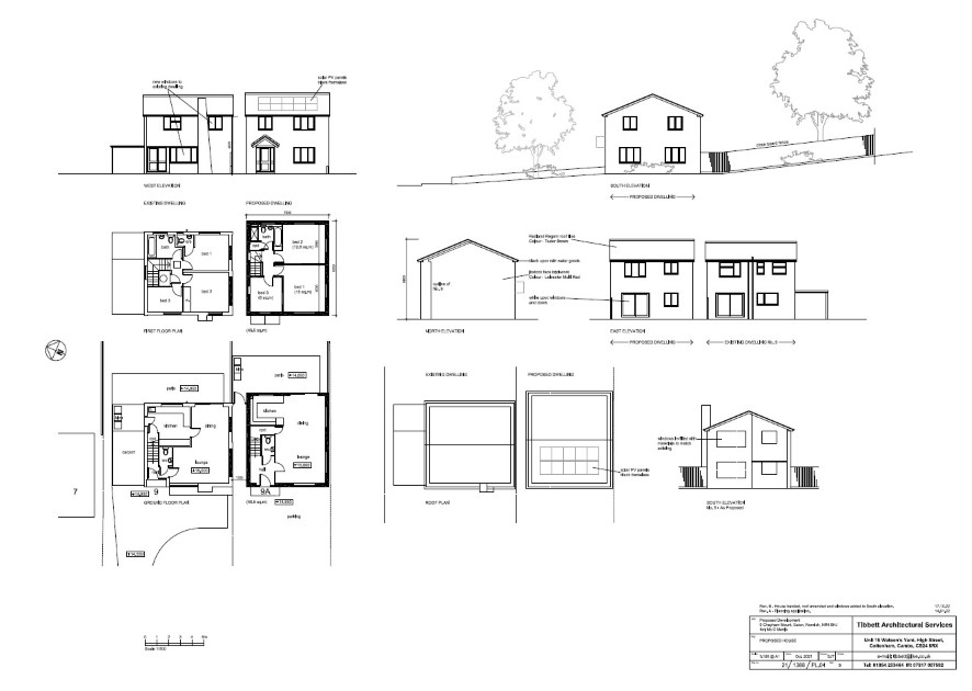
A building plot with planning permission granted for a three bedroom two story dwelling

This building plot is located on garden land in a quiet residential area. Planning Permission has been granted for a well proportioned three bedroom two story dwelling and full details can be found on the Norwich City Council planning portal under reference 22/00551/F Proposed Accommodation Ground Floor: entrance hall, cloakroom, open plan living/dining room and kitchen, First Floor: landing, three bedrooms, bathroom A rare opportunity which will no doubt have broad appeal to developers or as a self-build.

Tenure

Freehold

Services

Interested parties are requested to make their own enquiries to the relevant authorities as to the availability of services.

Local Authority

Norwich City Council

Solicitors

Spire Solicitors LLP (Norwich), Ref: Tracy Guest, Tel: 01603 886221

Important Notice to Prospective Buyers:

We draw your attention to the Special Conditions of Sale within the Legal Pack, referring to other charges in addition to the purchase price which may become payable. Such costs may include Search Fees, reimbursement of Sellers costs and Legal Fees, and Transfer Fees amongst others.

Additional Fees

Buyer's Premium - £600 inc VAT payable on exchange of contracts.

Administration Charge - £1200 inc VAT payable on exchange of contracts.

Disbursements - Please see the legal pack for any disbursements listed that may become payable by the purchaser on completion.

View Larger Map

Disclaimer: The map preview provided above is for general guidance only and may not accurately reflect the exact location or surrounding buildings. Prospective buyers and interested parties are strongly advised to independently verify the precise location and surroundings before bidding.