For Sale By Auction | 10:00, 25 March 2026 | Lot 27

77-79 Cullingham Road, Ipswich, Suffolk IP1 2EG

*Guide | £275,000 - £325,000 (plus fees)

  • Workshop & Retail space
  • Tenure: Freehold

Call the team on 01473 558 888 for more information

Auction Date

Wed 25/03/2026

Auction Time

10:00

Auction Venue

Livestream Auction

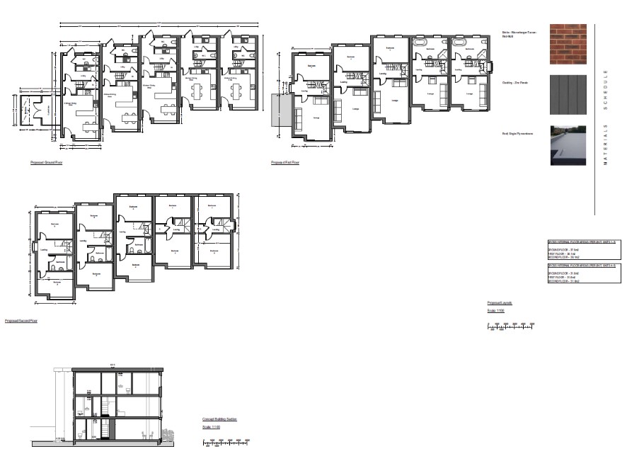
A substantial light industrial/workshop unit with development potential (STPP)

Situated to the west of Ipswich town centre at the bottom of a cul-de-sac is this detached light industrial/workshop set in 0.16 acres (stms) The brick built building extends to approximately 6,116 sq. ft. (568 sq m) including the mezzanine along with forecourt parking for several vehicles and was previously utilised for garden machinery sales and maintenance but would suit a number of trades. The property is subject to a pending planning application with Ipswich Borough Council (Application No. 21/00543) for 5 three storey residential dwellings and whilst this has stalled the area has now been outlined for residential development which should speed things along should the purchaser wish to pursue. Opportunities of this nature are hard to come by and we strongly recommend giving it close attention.

Tenure

Freehold

Energy Efficiency Rating (EPC)

Current Rating C

Services

Interested parties are requested to make their own enquiries to the relevant authorities as to the availability of services.

Local Authority

Ipswich Borough Council

Solicitors

Ross Coates Solicitors (Kesgrave), Ref: Ross Coates

Important Notice to Prospective Buyers:

We draw your attention to the Special Conditions of Sale within the Legal Pack, referring to other charges in addition to the purchase price which may become payable. Such costs may include Search Fees, reimbursement of Sellers costs and Legal Fees, and Transfer Fees amongst others.

Additional Fees

Buyer's Premium - £1500 inc VAT payable on exchange of contracts.

Administration Charge - £1200 inc VAT payable on exchange of contracts.

Disbursements - Please see the legal pack for any disbursements listed that may become payable by the purchaser on completion.

View Larger Map

Disclaimer: The map preview provided above is for general guidance only and may not accurately reflect the exact location or surrounding buildings. Prospective buyers and interested parties are strongly advised to independently verify the precise location and surroundings before bidding.