For Sale By Auction | 10:00, 25 March 2026 | Lot 5

161 Sprowston Road, Norwich, Norfolk NR3 4QQ

*Guide | £130,000 (plus fees)

  • Terraced House
  • 2 Bedrooms
  • Tenure: Freehold

Call the team on 01603 505 100 for more information

Auction Date

Wed 25/03/2026

Auction Time

10:00

Auction Venue

Livestream Auction

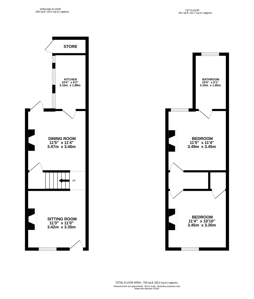
A two bedroom terrace house in need of refurbishment, ideal for developer or investor

This two bedroom terrace house is situated around approximately 1.5 miles north of the city centre, close to a range of services and amenities, and is now to be sold with vacant possession. The property requires remedial repair and a programme of updating and would suit a cash buyer. Accommodation comprises: lounge, dining room and kitchen on the ground floor and two bedrooms one with ensuite on the first floor. Externally there is a small garden to the front and bisected rear garden. This would be an ideal purchase for an owner occupier or investor.

Tenure

Freehold

Ground Floor

Sitting room, dining room, kitchen

First Floor

Two bedrooms off landing (bathroom off bedroom two)

Outside

Bisected rear garden.

Council Tax Band

A

Viewings

Open viewings are arranged and the next are on Monday, 16 March. To book an appointment please call the Norwich office.,

Energy Efficiency Rating (EPC)

Current Rating D

Services

Interested parties are requested to make their own enquiries to the relevant authorities as to the availability of services.

Local Authority

Norwich City Council

Solicitors

Leathes Prior (The Close), Ref: Rachael Hughes, Tel: 01603 281004

Important Notice to Prospective Buyers:

We draw your attention to the Special Conditions of Sale within the Legal Pack, referring to other charges in addition to the purchase price which may become payable. Such costs may include Search Fees, reimbursement of Sellers costs and Legal Fees, and Transfer Fees amongst others.

Additional Fees

Buyer's Premium - £960 inc VAT payable on exchange of contracts.

Administration Charge - £1200 inc VAT payable on exchange of contracts.

Disbursements - Please see the legal pack for any disbursements listed that may become payable by the purchaser on completion.

View Larger Map

Disclaimer: The map preview provided above is for general guidance only and may not accurately reflect the exact location or surrounding buildings. Prospective buyers and interested parties are strongly advised to independently verify the precise location and surroundings before bidding.