Postponed | Lot 28a

109 Portman Road, Ipswich, Suffolk IP1 2BN

Postponed

  • Flat
  • 3 Bedrooms
  • Tenure: Leasehold. 125 years from January 2000

Call the team on 01473 558 888 for more information

Auction Date

Wed 25/03/2026

Auction Time

10:00

Auction Venue

Livestream Auction

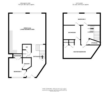
A spacious three bedroom loft style duplex apartment

Conveniently situated close to both the station and town centre is this well proportioned duplex apartment with an allocated parking space. The property offers three bedroom, two bathroom accommodation with a large open plan living space/kitchen and plenty of industrial style character. Offering tremendous rental potential on either a standard tenancy or as an Airbnb this is a Lot certain to be of investor interest.

Tenure

Leasehold. 125 years from January 2000

Council Tax Band

E

Energy Efficiency Rating (EPC)

Current Rating C

Services

Interested parties are requested to make their own enquiries to the relevant authorities as to the availability of services.

Local Authority

Ipswich Borough Council

Solicitors

Hayward Moon (Ipswich), Ref: Mark Hayward, Tel: 01473 234734

Important Notice to Prospective Buyers:

We draw your attention to the Special Conditions of Sale within the Legal Pack, referring to other charges in addition to the purchase price which may become payable. Such costs may include Search Fees, reimbursement of Sellers costs and Legal Fees, and Transfer Fees amongst others.

Additional Fees

Buyer's Premium - £1200 inc VAT payable on exchange of contracts.

Administration Charge - £1200 inc VAT payable on exchange of contracts.

Disbursements - Please see the legal pack for any disbursements listed that may become payable by the purchaser on completion.

View Larger Map

Disclaimer: The map preview provided above is for general guidance only and may not accurately reflect the exact location or surrounding buildings. Prospective buyers and interested parties are strongly advised to independently verify the precise location and surroundings before bidding.