For Sale By Auction | 10:00, 25 March 2026 | Lot 140a

37 Rochester Road, Lowestoft, Suffolk NR33 0JR

*Guide | £110,000 - £130,000 (plus fees)

  • Terraced House
  • 3 Bedrooms
  • Tenure: Freehold

Call the team on 01603 505 100 for more information

Auction Date

Wed 25/03/2026

Auction Time

10:00

Auction Venue

Livestream Auction

Three bedroom terraced house being sold with tenant in situ and situated in a desirable area of Lowestoft

This Victorian terrace house is situated in a desirable area of Lowestoft and is being sold with long-standing tenant in situ. The property is in good order and has been offered as a rental property for a number of years. The accommodation offers two reception rooms, kitchen, three bedrooms and bathroom with front and rear gardens. Currently producing £670pcm this would make a great turn key investment.

Tenure

Freehold

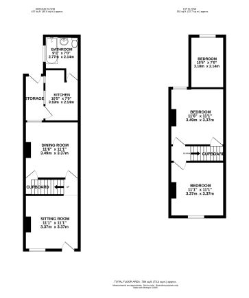
Ground floor

Sitting room, dining room, kitchen, bathroom, rear porch

First floor

Landing, three bedrooms

Exterior

Front and rear gardens

Viewings

Viewings will be available on Monday 23rd March ONLY. Appointment essential. Please contact the Norwich Office to book your appointment.

Council Tax Band

A

Energy Efficiency Rating (EPC)

Current Rating C

Services

Interested parties are requested to make their own enquiries to the relevant authorities as to the availability of services.

Local Authority

East Suffolk Council

Solicitors

Spire Solicitors LLP (Norwich), Ref: Tracy Guest, Tel: 01603 886221

Important Notice to Prospective Buyers:

We draw your attention to the Special Conditions of Sale within the Legal Pack, referring to other charges in addition to the purchase price which may become payable. Such costs may include Search Fees, reimbursement of Sellers costs and Legal Fees, and Transfer Fees amongst others.

Additional Fees

Buyer's Premium - £1140 inc VAT payable on exchange of contracts.

Administration Charge - £1200 inc VAT payable on exchange of contracts.

Disbursements - Please see the legal pack for any disbursements listed that may become payable by the purchaser on completion.

View Larger Map

Disclaimer: The map preview provided above is for general guidance only and may not accurately reflect the exact location or surrounding buildings. Prospective buyers and interested parties are strongly advised to independently verify the precise location and surroundings before bidding.