For Sale By Auction | 10:00, 07 May 2026 | Lot 39

26 Staithe Road, Wisbech, Cambridgeshire PE13 3TF

*Guide | £150,000 (plus fees)

  • Detached House
  • 3 Bedrooms
  • Tenure: Freehold

Call the team on 01733 889833 for more information

Auction Date

Thu 07/05/2026

Auction Time

10:00

Auction Venue

Livestream Auction

A detached three bedroom house in need of renovation with a building plot adjacent with full planning permission.

A detached three bedroom house in need of renovation with a building plot adjacent. The current owners have approved for planning permission by Fenland District Council FYR25/0987/0. The house offers a lounge, dining room, kitchen on the ground floor with three bedrooms and a bathroom on the first floor. Wisbech is located on the A47 and offers a variety of facilities.

Tenure

Freehold

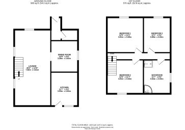
Ground Floor

Hall, lounge, dining room and a kitchen.

First floor

Landing three bedrooms and a bathroom.

Outside

Parking to side and garden at rear. Plot adjacent w/planning approved - Ref FYR25/0987/0.

Energy Efficiency Rating (EPC)

Current Rating D

Services

Interested parties are requested to make their own enquiries to the relevant authorities as to the availability of services.

Local Authority

Fenland District Council

Solicitors

Bowsers, Ref: Sarah-Jane Featherstone, Tel: 01945 583 194

Important Notice to Prospective Buyers:

We draw your attention to the Special Conditions of Sale within the Legal Pack, referring to other charges in addition to the purchase price which may become payable. Such costs may include Search Fees, reimbursement of Sellers costs and Legal Fees, and Transfer Fees amongst others.

Additional Fees

Buyer's Premium - £1200 inc VAT payable on exchange of contracts.

Administration Charge - £1200 inc VAT payable on exchange of contracts.

Disbursements - Please see the legal pack for any disbursements listed that may become payable by the purchaser on completion.

View Larger Map

Disclaimer: The map preview provided above is for general guidance only and may not accurately reflect the exact location or surrounding buildings. Prospective buyers and interested parties are strongly advised to independently verify the precise location and surroundings before bidding.