For Sale By Auction | 10:00, 07 May 2026 | Lot 16

2 Town Houses, Burnthouse Lane, Toft Monks, Beccles, Norfolk NR34 0ES

*Guide | £180,000 - £200,000 (plus fees)

  • Terraced House
  • 2 Bedrooms
  • Tenure: Freehold

Call the team on 01603 505 100 for more information

Auction Date

Thu 07/05/2026

Auction Time

10:00

Auction Venue

Livestream Auction

Vacant two bedroom mid-terraced cottage situated in the rural village of Toft Monks with field views, generous gardens and parking

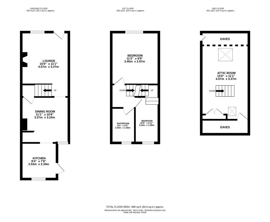
Unique two bedroom mid-terraced cottage situated within the Norfolk village of Toft Monks located 5 miles north of Beccles. This character cottage was refurbished 8 years ago to include new kitchen and bathroom along with a woodburning stove making this a ready made home for the new owner. Offering two reception rooms and kitchen on the ground floor and two bedrooms and bathroom on the first floor along with a staircase to access a further storage room in the loft which would be a perfect hobby room. The cottage is one of three located in a rural spot with fields to every aspect and would make a perfect holiday home or first purchase. This property is well worth viewing as you will be pleasantly surprised by what it has to offer.

Tenure

Freehold

Outside Space

Within the front south facing walled garden area there is parking space and to the rear there is pedestrian access through to the very large back garden. This garden is not attached to the property but is a few paces to a substantial area measuring approximately 0.25 acre (stms). Ideal for growing fruit and veg, it has a number of established fruit trees, or to keep animals or to enjoy as a recreation space. The garden also houses a large lockable container with power.

Ground Floor

Sitting room, dining room, kitchen, rear hall.

First floor

Landing, two bedrooms, bathroom

Second floor

Attic room/perfect hobby room

Viewings

Viewings are being held by appointment on the following days Thursday 16 April Friday 24 April Monday 27 April Wednesday 29 April Please contact the Norwich Office to book your appointment time.

Council Tax Band

B

Note

The cottage has a septic tank

Energy Efficiency Rating (EPC)

Current Rating D

Services

Interested parties are requested to make their own enquiries to the relevant authorities as to the availability of services.

Local Authority

South Norfolk Council

Solicitors

Spire Solicitors LLP (Norwich), Ref: Tracy Guest, Tel: 01603 886221

Important Notice to Prospective Buyers:

We draw your attention to the Special Conditions of Sale within the Legal Pack, referring to other charges in addition to the purchase price which may become payable. Such costs may include Search Fees, reimbursement of Sellers costs and Legal Fees, and Transfer Fees amongst others.

Additional Fees

Buyer's Premium - £1140 inc VAT payable on exchange of contracts.

Administration Charge - £1200 inc VAT payable on exchange of contracts.

Disbursements - Please see the legal pack for any disbursements listed that may become payable by the purchaser on completion.

View Larger Map

Disclaimer: The map preview provided above is for general guidance only and may not accurately reflect the exact location or surrounding buildings. Prospective buyers and interested parties are strongly advised to independently verify the precise location and surroundings before bidding.