For Sale By Auction | 10:00, 07 May 2026 | Lot 11

13 Upper King Street, Norwich, Norfolk NR3 1RB

*Guide | £200,000 - £250,000 (plus fees)

  • Commercial Property
  • Tenure: Freehold

Call the team on 01603 505 100 for more information

Auction Date

Thu 07/05/2026

Auction Time

10:00

Auction Venue

Livestream Auction

Valuable freehold property, currently tenanted with a passing rent of £19,000

Although tenanted at present this valuable Grade ll Listed city centre office building could be vacant within six months as the existing lease has been extended to allow for the new owners to enter into a further lease with the current occupiers or obtain vacant possession should this be required. The main tenant has been in occupation for a number of years and currently pays the equivalent of £19,000 pa. This attractive office building provides a range of well-proportioned accommodation arranged over its three floors, offering a mix of private offices and shared space suitable for a variety of business uses.

Tenure

Freehold

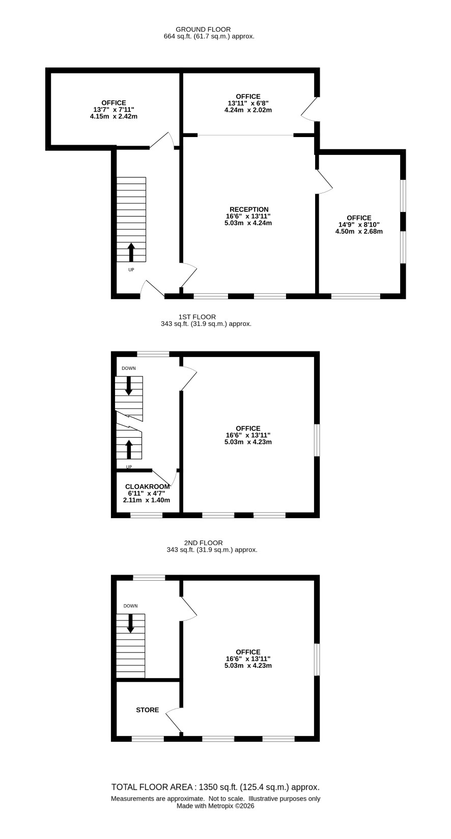
Accommodation

Ground Floor: Hall, main reception with separate side office (lead tenant), back office (sub let). First Floor: Shared toilet facility, Office (sublet), Second Floor: Office (sub let).

Business Rates

Basement: 1 April 2026 to present - £1,875 Ground Floor: 1 April 2026 to present - £7,500 Ground Floor Rear: 16 March 2026 to present - £2,175 First Floor: 1 April 2026 to present - £3,850 Second Floor: 1 April 2026 to present - £3,350

Viewings

Viewings are by appointment in conjunction with the tenant. To book an appointment please call the Norwich office.

Energy Efficiency Rating (EPC)

Current Rating E

Services

Interested parties are requested to make their own enquiries to the relevant authorities as to the availability of services.

Local Authority

Norwich City Council

Solicitors

Butcher Andrews (Fakenham), Ref: Joe Yexley, Tel: 01328 863131

Offered in association with

Francis Darrah

Important Notice to Prospective Buyers:

We draw your attention to the Special Conditions of Sale within the Legal Pack, referring to other charges in addition to the purchase price which may become payable. Such costs may include Search Fees, reimbursement of Sellers costs and Legal Fees, and Transfer Fees amongst others.

Additional Fees

Buyer's Premium - £1200 inc VAT payable on exchange of contracts.

Administration Charge - £1200 inc VAT payable on exchange of contracts.

Disbursements - Please see the legal pack for any disbursements listed that may become payable by the purchaser on completion.

View Larger Map

Disclaimer: The map preview provided above is for general guidance only and may not accurately reflect the exact location or surrounding buildings. Prospective buyers and interested parties are strongly advised to independently verify the precise location and surroundings before bidding.