For Sale By Auction | 10:00, 07 May 2026 | Lot 100

8 Cleveland Road, Lowestoft, Suffolk NR33 0BN

*Guide | £180,000 - £200,000 (plus fees)

  • Terraced House
  • 5 Bedrooms
  • Tenure: Freehold

Call the team on 01603 505 100 for more information

Auction Date

Thu 07/05/2026

Auction Time

10:00

Auction Venue

Livestream Auction

This substantial terrace house has been used as an HMO (although now has an expired licence) and is in good order throughout making a great investment in the centre of Lowestoft

A substantial property which was formerly used an HMO although the licence has expired. This spacious Victorian house has many original feature including restored pine panelled understairs, open fireplaces and grand high ceilings. The three storey property offers 5/6 bedrooms, modern fitted kitchen and offers a spacious family home or with planning permission granted could return to be a house of multiple occupancy. In good well maintained order throughout this is a great investment opportunity. Viewing recommended.

Tenure

Freehold

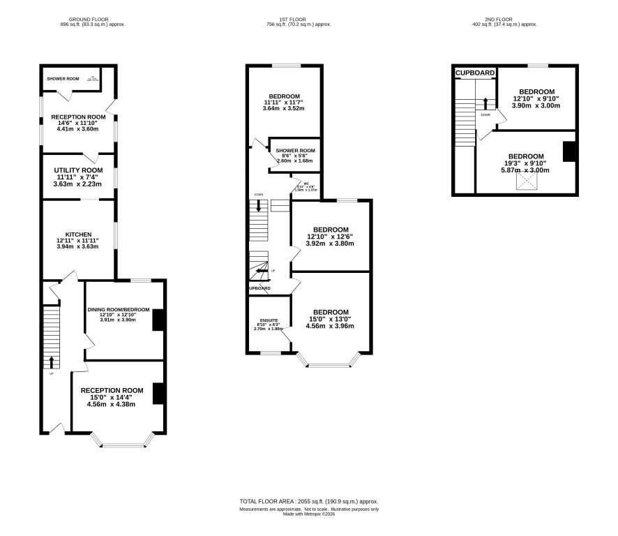
Ground Floor

Entrance hall, sitting room, dining room/6th bedroom, kitchen, utility room, rear hall, shower room

First Floor

Landing, bedroom with ensuite, two further bedrooms, separate shower, separate W.C.

Second Floor

Landing, two bedrooms

Outside

To the front there is a wall enclosing the entrance to the front of the house. To the rear there is access to a small courtyard garden.

Council Tax Band

B

Viewings

Viewings are being held by arrangement The next is on Friday 10 April Please contact the Norwich Office to book your appointment time

Energy Efficiency Rating (EPC)

Current Rating D

Services

Interested parties are requested to make their own enquiries to the relevant authorities as to the availability of services.

Local Authority

East Suffolk Council

Solicitors

Spire Solicitors LLP (Norwich), Ref: Tracy Guest, Tel: 01603 886221

Important Notice to Prospective Buyers:

We draw your attention to the Special Conditions of Sale within the Legal Pack, referring to other charges in addition to the purchase price which may become payable. Such costs may include Search Fees, reimbursement of Sellers costs and Legal Fees, and Transfer Fees amongst others.

Additional Fees

Buyer's Premium - £1140 inc VAT payable on exchange of contracts.

Administration Charge - £1200 inc VAT payable on exchange of contracts.

Disbursements - Please see the legal pack for any disbursements listed that may become payable by the purchaser on completion.

View Larger Map

Disclaimer: The map preview provided above is for general guidance only and may not accurately reflect the exact location or surrounding buildings. Prospective buyers and interested parties are strongly advised to independently verify the precise location and surroundings before bidding.