Withdrawn | Lot 3

4 High Market Place, Kirkbymoorside, North Yorkshire, YO62 6AX

Withdrawn

  • Town House
  • 3 Bedrooms
  • Tenure: We understand the property to be freehold. There is a flying freehold over the archway. Vacant possession on completion.

Call the team on 0845 400 9900 for more information

Auction Date

Wed 26/03/2025

Auction Time

1.00pm

Auction Venue

Online

An excellent three-bedroom townhouse in the market town of Kirkbymoorside.

This spacious three-bedroom townhouse provides generous accommodation across three floors with the option to convert into two apartments (it was previously two flats - 1 x one-bed and 1 x three-bed). The property is presented in good condition with a modern kitchen and decor. It offers an excellent opportunity to anyone looking to start or expand a property investment portfolio (subject to improvement of the EPC rating), owner occupation or for use as a second home. Night storage heating and part double and secondary double glazing.

Tenure

We understand the property to be freehold. There is a flying freehold over the archway. Vacant possession on completion.

Location

The property is situated in the market town of Kirkbymoorside, which offers a good range of local amenities, including a regular Wednesday market. Kirkbymoorside has a good range of local amenities, including doctors and dentists surgeries. The renowned North York Moors National Park and Great Dalby Forest are only a short drive away. The ancient city of York and the coastal resorts of Scarborough and Whitby are easily commutable, as are the neighbouring market towns of Helmsley, Pickering and Malton. There are railway stations at Malton and Thirsk, and the town is on the Scarborough to Helmsley bus route.

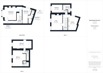
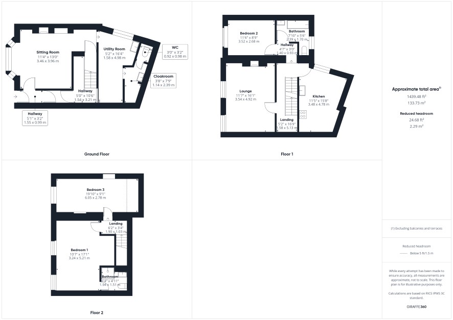
Accommodation

Ground Floor: Front entrance lobby, sitting room with steps leading down to a cellar, utility room, inner lobby, cloakroom, WC. First Floor: Landing, sitting room, kitchen, family bathroom and Bedroom 2. Second Floor: Bedroom 1 with en-suite shower room and Bedroom 3. Outside: There is no garden or off-street parking.

Services

All mains services are connected to the property but have not been tested.

Council Tax

Council Tax is payable to the Ryedale District Council. Online enquiry lists the property in the Council Tax Property Bandings List in Valuation Band D.*

Viewings

Strictly by appointment with the auctioneers on 0845 400 9900.

Method of Sale

The property will be offered for sale by online auction with bidding commencing at 12.00 pm on Monday, 24th March 2025, and closing on Wednesday, 26th March, at 1.00 pm. For further legal information relating to this lot, please go to auctionhouse.co.uk/hullandeastyorkshire.

Conditions of Sale

The property will be sold subject to conditions of sale, copies of which will be available for inspection at the auctioneer’s offices, with the solicitors and online at auctionhouse.co.uk/hullandeastyorkshire prior to the date of the auction.

Guide Price

Guides are provided as an indication of each sellers minimum expectation. They are not necessarily figures which a property will sell for and may change at any time prior to the auction. Each property will be offered subject to a Reserve (a figure below which the Auctioneer cannot sell the property during the auction), which we expect will be set within the Guide Range or no more than 10% above a single figure Guide.

Energy Efficiency Rating (EPC)

Current Rating F

Services

Interested parties are invited to make their own enquiries to the relevant authorities as to the availability of the services.

Local Authority

Ryedale District Council

Solicitors

Kitching & Walker Solicitors, 8 Market Place, Kirbymoorside, York, North Yorkshire, YO62 6DD, Ref: Stuart Temple, Tel: 01751 431 237

Important Notice to Prospective Buyers:

We draw your attention to the Special Conditions of Sale within the Legal Pack, referring to other charges in addition to the purchase price which may become payable. Such costs may include Search Fees, reimbursement of Sellers costs and Legal Fees, and Transfer Fees amongst others.

Additional Fees

Buyer's Premium - The purchaser will be required to pay a buyer’s premium of £600 (£500 + VAT) in addition to the purchase price of the property.

Administration Charge - The purchaser will be required to pay an administration charge of £900 (£750 plus VAT) in addition to the purchase price of the property.

Disbursements - Please see the legal pack for any disbursements listed that may become payable by the purchaser on completion.

Please see the legal pack for any disbursements listed that may become payable by the purchaser on completion.

View Larger Map

Disclaimer: The map preview provided above is for general guidance only and may not accurately reflect the exact location or surrounding buildings. Prospective buyers and interested parties are strongly advised to independently verify the precise location and surroundings before bidding.