Sold Prior | Lot 6

114 Welbeck Street, Hull, East Yorkshire, HU5 3SG

Sold Prior

  • Terraced House
  • 2 Bedrooms
  • Tenure: The property is freehold and with vacant possession.

Call the team on 0845 400 9900 for more information

Auction Date

Wed 26/03/2025

Auction Time

1.00pm

Auction Venue

Online

A two-bedroom mid-terrace house in need of renovation.

This generous two-bedroom period mid-terrace property presents an exciting opportunity for renovation, making it ideal for property renovators and investors. The property provides gas-centrally heated and uPVC double-glazed accommodation that would benefit from cosmetic improvement. Briefly comprising an entrance porch, sitting/dining room, kitchen, rear lobby and bathroom/WC. Upstairs, a central landing gives access to two well-proportioned bedrooms.

Tenure

The property is freehold and with vacant possession.

Location

Situated in a popular location close to top Hull schools and with excellent transport links to Newland Avenue, the University and Hull City Centre.

Accommodation

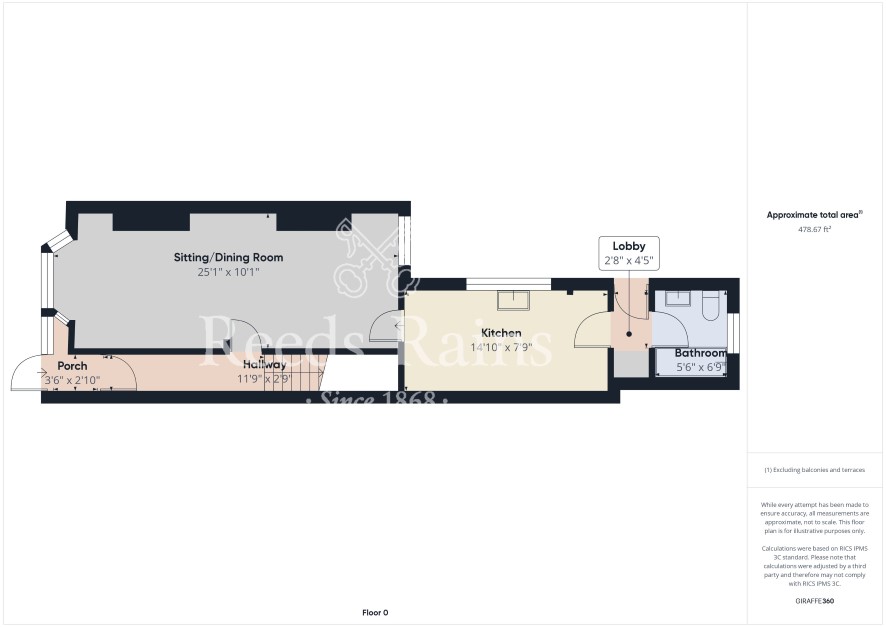
Ground Floor Entrance Porch Approached from the front through a part-glazed entrance door. Useful space with a further door leading into the entrance hall. Entrance Hall Staircase approach leading ahead of the first floor level. Original ceiling coving. Corbels. Door leading through to the: Sitting/Dining Room 25'1" x 10'1" (7.65m x 3.07m) Enjoying dual aspects with a walk-in bay window facing the front and at the opposite end a rear facing window. Original ceiling coving. Two gas fires. Understairs storage cupboard. Door leading into the: Kitchen 14'10" x 7'9" (4.52m x 2.36m) With a side facing. Sizeable kitchen with a range of traditional base and wall mounted cabinets with contrasting countertops. Inset stainless steel sink unit. Panelled ceiling with inset spotlights. Rear Lobby 4'5" x 2'8" (1.35m x 0.81m) With a double-glazed entrance door leading outside. Door leading through to the bathroom. Built-in storage. Bathroom 6'9" x 5'6" (2.06m x 1.68m) With a rear facing window. Appointed with a three-piece coloured suite comprising panelled bath, wash hand basin and low flush WC. Ceramic tiled splash-backs. First Floor Landing 12'2" x 4'11" (3.7m x 1.5m) With a small rear facing window. Central landing area with original panelled doors that lead off to each of the two bedrooms. Principal Bedroom 12' x 10'5" (3.66m x 3.18m) Front facing double-bedroom. Bedroom Two 12'3" x 7'10" (3.73m x 2.4m) Rear facing bedroom.

Outside

Front Forecourt Small forecourt area where pedestrian access is provided to the front door. Rear Courtyard Found to the rear is an 'L' shaped courtyard for seating.

Council Tax

Band A.

Services

All mains services are connected to the property but have not been tested.

Joint Agents

Reeds Rains, 508 Holderness Road, Hull, HU9 3DS Tel: 01482 709980

Viewings

Strictly by appointment with the auctioneers on 0845 400 9900 or the joint agents Reeds Rains on 01482 709980.

Method of Sale

The property will be offered for sale by online auction with bidding commencing at 1.00 pm on Monday, 24th March 2025, and closing on Wednesday, 26th March, at 1.00 pm. For further legal information relating to this lot, please go to auctionhouse.co.uk/hullandeastyorkshire.

Conditions of Sale

The property will be sold subject to conditions of sale, copies of which will be available for inspection at the auctioneer’s offices, with the solicitors and online at auctionhouse.co.uk/hullandeastyorkshire prior to the date of the auction.

Guide Price

Guides are provided as an indication of each sellers minimum expectation. They are not necessarily figures which a property will sell for and may change at any time prior to the auction. Each property will be offered subject to a Reserve (a figure below which the Auctioneer cannot sell the property during the auction), which we expect will be set within the Guide Range or no more than 10% above a single figure Guide.

Energy Efficiency Rating (EPC)

Current Rating F

Services

Interested parties are invited to make their own enquiries to the relevant authorities as to the availability of the services.

Local Authority

Hull City Council

Solicitors

HNW Law, Suite 17, The Cadcam Centre, High Force Road, Riverside Park, Middlesbrough, TS2 1RH, Ref: Rachel Williamson, Tel: 01642 050 800

Important Notice to Prospective Buyers:

We draw your attention to the Special Conditions of Sale within the Legal Pack, referring to other charges in addition to the purchase price which may become payable. Such costs may include Search Fees, reimbursement of Sellers costs and Legal Fees, and Transfer Fees amongst others.

Additional Fees

Buyer's Premium - The purchaser will be required to pay a buyer’s premium of £1,800 (£1,500 + VAT) in addition to the purchase price of the property.

Administration Charge - The purchaser will be required to pay an administration charge of £1,200 (£1,000 plus VAT) in addition to the purchase price of the property.

Disbursements - Please see the legal pack for any disbursements listed that may become payable by the purchaser on completion.

Please see the legal pack for any disbursements listed that may become payable by the purchaser on completion.

View Larger Map

Disclaimer: The map preview provided above is for general guidance only and may not accurately reflect the exact location or surrounding buildings. Prospective buyers and interested parties are strongly advised to independently verify the precise location and surroundings before bidding.