For Sale By Auction | 1.00pm, 28 January 2026 | Lot 3

1 Skipsea Road, Beeford, East Yorkshire, YO25 8AL

*Guide | £140,000 - £160,000 (plus fees)

  • Bungalow
  • 2 Bedrooms
  • Tenure: The property is Freehold and offered with the benefit of vacant possession upon completion.

Call the team on 0845 400 9900 for more information

Auction Date

Wed 28/01/2026

Auction Time

1.00pm

Auction Venue

Regional Online

Two bedroom detached bungalow requiring updating throughout.

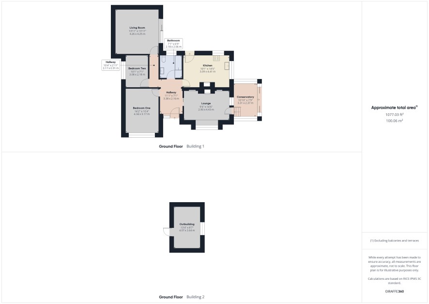
Enjoying views over the Beeford Beck, 1 Skipsea Road is a two-bedroom detached bungalow located on a fantastic corner plot. The property would now benefit from a programme of modernisation and improvement. An excellent project for any potential buyer to get stuck into and turn into a delightful, spacious home. The property briefly comprises: entrance hall, lounge, conservatory, kitchen, living room, two bedrooms, bathroom, wrap-around garden with gated off-street parking and a brick outbuilding.

Tenure

The property is Freehold and offered with the benefit of vacant possession upon completion.

Location

Situated within the village of Beeford with local amenities such as general store, post office, doctors surgery, Church, primary school, playing fields, fish & chip shop, Chinese restaurant and a public house. Beeford also has a community centre which hosts a variety of events and activities for residents. Further amenities can be found within the neighbouring towns as the village is situated approximately 10 miles from Beverley and 7 miles from Bridlington and is also easily commutable to Hull.

Accommodation

ENTRANCE HALL- 11'1" (3.38m) x 7'1" (2.16m) Door and window to the front aspect, panelled walls, stone flooring, radiator and power points. LOUNGE- 9'6" (2.90m) x 14'6" (4.43m) Window to the front aspect, panelled walls, stone fireplace with open fire, wooden flooring, radiator and power points. CONSERVATORY- 10'10" (3.31m) x 7'9" (2.37m) Sliding doors to the side aspect, windows to all three sides, tiled flooring and power points. KITCHEN- 10'1" (3.09m) x 14'5" (4.41m) Door and window to the rear aspect, additional window to the side, exposed beams, wall mounted gas boiler, open fireplace with brick surround, tiled splash back, a range of wall and base units, sink with drainer unit, plumbing for washing machine and dishwasher, electric oven, gas hob, tiled flooring, radiator and power points. LIVING ROOM- 13'11" (4.26m) x 13'11" (4.25m) Sliding doors to the side aspect, coving, picture rail, dado rail, marble fireplace with surround, wood flooring, radiator and power points. BEDROOM ONE- 14'2" (4.34m) x 10'4" (3.17m) Window to the front aspect, coving, built in wardrobes and drawers with dressing table, laminated flooring, radiator and power points. BEDROOM TWO- 10'1" (3.08m) x 7'1" (2.18m) Window to the side aspect, coving, dado rail, fitted carpets, radiator and power points. BATHROOM- 7'1" (2.18m) x 6'9" (2.06m) Opaque window to the rear aspect, fully tiled walls, built in storage, three piece bathroom suite comprising:- low flush WC, sink with pedestal, corner bath with over head shower, tiled flooring and radiator.

External

GARDEN Situated on a corner plot which is predominantly South-Westerly facing, planted with flowers and shrubs, lawned area, mature trees and patio area. OUTBUILDING- 134 (4.07m) x 87 (2.64m) Handy brick storage shed with door, window and power. PARKING Gated off street parking.

Services

Understood to all be connected to mains. Mains gas, water and electric.

Viewings

Strictly by appointment with the Auctioneers on 0845 400 9900.

Method of Sale

The property will be offered for sale by online auction with bidding commencing at 12 noon on Monday 26th January 2026 and closing on Wednesday 28th January 2026 at 1.00pm. For further legal information relating to this lot please log on to auctionhouse.co.uk/hullandeastyorkshire.

Conditions of Sale

The property will be sold subject to conditions of sale, copies of which will be available for inspection at the auctioneer’s offices, with the solicitors and on-line at auctionhouse.co.uk/hullandeastyorkshire prior to the date of the auction.

Energy Efficiency Rating (EPC)

Current Rating D62

Services

Interested parties are invited to make their own enquiries to the relevant authorities as to the availability of the services.

Local Authority

East Riding of Yorkshire Council

Solicitors

Pinkney Grunwells, 23 Exchange Street, Driffield, East Yorkshire, YO25 6LF, Ref: Anthony Matthew, Tel: 01377 253911

Important Notice to Prospective Buyers:

We draw your attention to the Special Conditions of Sale within the Legal Pack, referring to other charges in addition to the purchase price which may become payable. Such costs may include Search Fees, reimbursement of Sellers costs and Legal Fees, and Transfer Fees amongst others.

Additional Fees

Buyer's Premium - The purchaser will be required to pay a buyer’s premium of £720 (£600 + VAT) in addition to the purchase price of the property.

Administration Charge - The purchaser will be required to pay an administration charge of 0.3% subject to a minimum of £900 (£750 plus VAT) in addition to the purchase price of the property.

Disbursements - Please see the legal pack for any disbursements listed that may become payable by the purchaser on completion.

Please see the legal pack for any disbursements listed that may become payable by the purchaser on completion.

View Larger Map

Disclaimer: The map preview provided above is for general guidance only and may not accurately reflect the exact location or surrounding buildings. Prospective buyers and interested parties are strongly advised to independently verify the precise location and surroundings before bidding.