For Sale By Auction | 1.00pm, 28 January 2026 | Lot 9

4 Waudby Close, Walkington, East Yorkshire, HU17 8SA

*Guide | £285,000 (plus fees)

  • Detached House
  • 4 Bedrooms
  • Tenure: Freehold with vacant possession.

Call the team on 0845 400 9900 for more information

Auction Date

Wed 28/01/2026

Auction Time

1.00pm

Auction Venue

Regional Online

A fantastic four bedroom detached house standing on a corner plot in the sought-after village of Walkington, Nr Beverley.

We are offering this extended four-bedroom detached house by auction because it is understood to be timber-framed, which might not be acceptable to some lenders, but not all. Located on a corner plot within the sought-after village of Walkington, Nr Beverley, the family-sized accommodation has been generally well maintained, but some updating of internal fittings would be beneficial. Externally, the property benefits from front and rear gardens, off-street parking, and an integral single garage. The accommodation briefly comprises: Entrance Hall, Kitchen/Dining Area, Living Room, Sunroom, Downstairs WC, Four Bedrooms, Office, En Suite and Family Bathroom, and benefits from double glazing and gas central heating.

Tenure

Freehold with vacant possession.

Location

Situated just around 3 miles south-west of the historic market town of Beverley, Walkington is a highly desirable village offering the best of rural living with excellent access to local towns and cities. The village has a local shop, a post office, three public houses, and a well-regarded primary school.

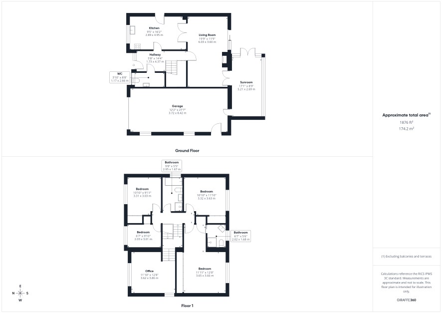
Ground Floor

Entrance Hallway - 5'8" x 14'4" (1.73m x 4.37m) Radiator. Staircase to first floor. Doors leading to: WC - 3'10" x 8'8" (1.17m x 2.66m) Low flush WC, sink with pedestal and mixer tap. Plumbing for appliance. Kitchen - 9'5" x 16'2" (2.89m x 4.95m) Range of shaker style wall and base units. Eye-level electric oven and grill. Electric hob. Sink with mixer tap and right hand drainer. Side door to outside. Radiator. Double doors leading to: Living Room - 19'9" x 11'9" (6.03m x 3.60m) Radiator. Feature fireplace. Patio doors to outside. Door leading to: Sunroom - 17'1" x 8'9" (5.21m x 2.69m) Two radiators. French doors to outside. Door leading to: Garage - 12'2" x 27'7" (3.72m x 8.42m) Up and over garage door. Side door to outside.

First Floor

Central landing leading to: Office - 11'10" x 12'8" (3.62m x 3.86m) Wood panelling to one wall. Radiator. Bedroom One - 11'11" x 12'0" (3.65m x 3.66m) Fitted wardrobes. Radiator. Storage cupboard. En Suite - 6'7" x 5'6" (2.02m x 1.68m) Three piece bathroom suite comprising:- low flush WC, sink with pedestal and mixer tap, shower unit. Radiator. Bedroom Two - 10'10" x 11'10" (3.32m x 3.63m) Storage cupboard. Radiator. Bedroom Three - 10'10" x 9'11" (3.31m x 3.03m) Storage cupboard. Radiator. Bedroom Four - 6'7" x 9'10" (2.03m x 3.01m) Radiator. Bathroom - 9'8" x 5'5" (2.95m x 1.67m) Four piece bathroom suite comprising:- low flush WC, sink, shower unit, bath. Radiator.

Outside

The property benefits from front and rear gardens laid mainly to lawn, off street parking and a single integral garage.

Construction

Timber framed construction which may affect mortgageability with some lenders.

Services

The property is believed to be connected to mains gas, electricity, water and drainage. None of the services or installations has been tested.

Viewings

Strictly by appointment with the Auctioneers on 0845 400 9900.

Council Tax

Council Tax is payable to East Riding of Yorkshire Council. The house is shown in the Council Tax Property Bandings List in Valuation Band E.

Energy Efficiency Rating (EPC)

Current Rating E54

Services

Interested parties are invited to make their own enquiries to the relevant authorities as to the availability of the services.

Local Authority

East Riding of Yorkshire Council

Solicitors

Sanderson's Solicitors, 17-19 Parliament Street, Hull, East Yorkshire, HU1 2BH, Ref: Shazida Ullah, Tel: 01482 324 662

Important Notice to Prospective Buyers:

We draw your attention to the Special Conditions of Sale within the Legal Pack, referring to other charges in addition to the purchase price which may become payable. Such costs may include Search Fees, reimbursement of Sellers costs and Legal Fees, and Transfer Fees amongst others.

Additional Fees

Buyer's Premium - The purchaser will be required to pay a buyer’s premium of £900 (£750 + VAT) in addition to the purchase price of the property.

Administration Charge - The purchaser will be required to pay an administration charge of 0.3% subject to a minimum of £900 (£750 plus VAT) in addition to the purchase price of the property.

Disbursements - Please refer to the legal pack for any disbursements listed that may become payable by the purchaser upon completion.

Please see the legal pack for any disbursements listed that may become payable by the purchaser on completion.

View Larger Map

Disclaimer: The map preview provided above is for general guidance only and may not accurately reflect the exact location or surrounding buildings. Prospective buyers and interested parties are strongly advised to independently verify the precise location and surroundings before bidding.