For Sale By Auction | 1.00pm, 25 March 2026 | Lot TBC

180 Beverley Road, Hull, East Yorkshire, HU3 1UP

*Guide | £130,000 (plus fees)

  • Mixed Use
  • 2 Bedrooms
  • Tenure: Freehold. Vacant possession on completion.

Call the team on 0845 400 9900 for more information

Auction Date

Wed 25/03/2026

Auction Time

1.00pm

Auction Venue

Regional Online

A mid-terrace retail unit with two bedroom maisonette above.

A retail sales shop with a spacious two-bedroom maisonette above. The retail area has the benefit of a generously sized shop floor, kitchenette, WC and office. To the rear, there is a large outside covered storage area and access. The shop is currently occupied by a long established DIY business, but is being sold with vacant possession. To the upstairs, the accommodation comprises Kitchen, Living/Dining Area, Bedroom, WC, Staircase leading to further Bedroom, Storage Room and Bathroom. The property benefits from a separate access at the front, which could allow potential to separate the shop and maisonette completely (subject to necessary planning permissions). On street parking. The property benefits from double glazing and gas central heating.

Tenure

Freehold. Vacant possession on completion.

Location

The property benefits from frontage directly onto Beverley Road, which is a vibrant area and is one of the main arterial roads into Hull City Centre. Ideally located close to several residential developments within the West area of Hull, Beverley Road is home to a large number of shops, restaurants and supermarkets.

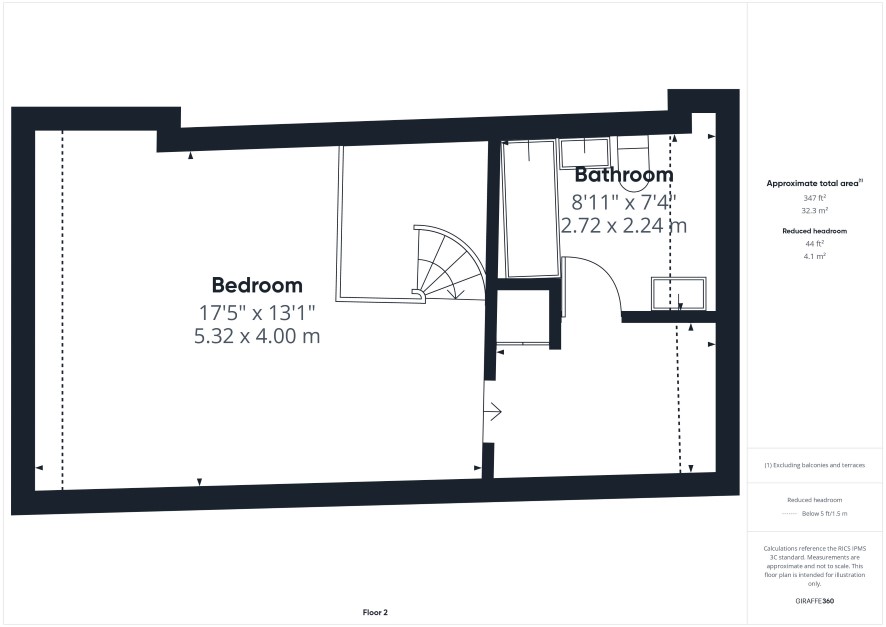
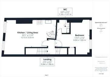
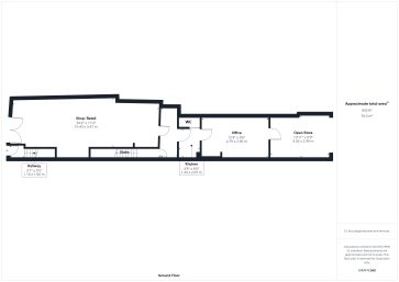
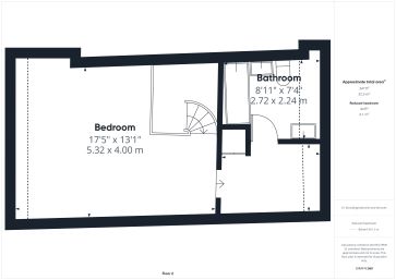
Accommodation

Ground Floor: Shop, Kitchenette, WC, Office First & Second Floor: Kitchen, Living/Dining Area, Bedroom, WC, Staircase leading to further Bedroom, Storage Room and Bathroom. Outside: Seperate access to the maisonette from Beverley Road. On street parking. Covered storage area to the rear.

Business Rates

The property has a rateable value of £4,000.

Council Tax

The flat above the shop is in Council Tax Band A within the jurisdiction of Hull City Council.

EPC

Shop - C72 Flat above - D64

Services

All mains services are believed to be connected but have not been tested.

Viewings

Strictly by appointment with Auction House on 0845 400 99 00.

Method of Sale

The property will be offered for sale by online auction with bidding commencing at 12 noon on Monday, 23rd March 2026 and closing on Wednesday, 25th March 2026 at 1.00 pm. For further legal information relating to this lot, please log on to auctionhouse.co.uk/hullandeastyorkshire.

Conditions of Sale

The property will be sold subject to conditions of sale, copies of which will be available for inspection at the auctioneer’s offices, with the solicitors and on-line at auctionhouse.co.uk/hullandeastyorkshire prior to the date of the auction.

Services

Interested parties are invited to make their own enquiries to the relevant authorities as to the availability of the services.

Local Authority

Hull City Council

Solicitors

Sanderson's Solicitors, 17-19 Parliament Street, Hull, East Yorkshire, HU1 2BH, Ref: William Rispin, Tel: 01482 324 662

Important Notice to Prospective Buyers:

We draw your attention to the Special Conditions of Sale within the Legal Pack, referring to other charges in addition to the purchase price which may become payable. Such costs may include Search Fees, reimbursement of Sellers costs and Legal Fees, and Transfer Fees amongst others.

Additional Fees

Buyer's Premium - The purchaser will be required to pay a buyer's premium of £900 (£750 plus VAT) in addition to the purchase price of the property.

Administration Charge - The purchaser will be required to pay an administration charge of £900 (£750 plus VAT) in addition to the purchase price of the property.

Disbursements - Please see the legal pack for any disbursements listed that may become payable by the purchaser on completion.

Please see the legal pack for any disbursements listed that may become payable by the purchaser on completion.

View Larger Map

Disclaimer: The map preview provided above is for general guidance only and may not accurately reflect the exact location or surrounding buildings. Prospective buyers and interested parties are strongly advised to independently verify the precise location and surroundings before bidding.