For Sale By Auction | 1.00pm, 25 March 2026 | Lot TBC

High Flags Mill 1, 192 Wincolmlee, Hull, East Yorkshire, HU2 0PZ

*Guide | £175,000 - £225,000 (plus fees)

  • Residential Development
  • Tenure: Freehold with part vacant possession upon completion and subject to the tenancy detailed above on the neighbouring building.

Call the team on 0845 400 9900 for more information

Auction Date

Wed 25/03/2026

Auction Time

1.00pm

Auction Venue

Regional Online

An over-ready development opportunity of a Grade II Listed former Mill with full planning approval for conversion to create 20 self-contained apartments.

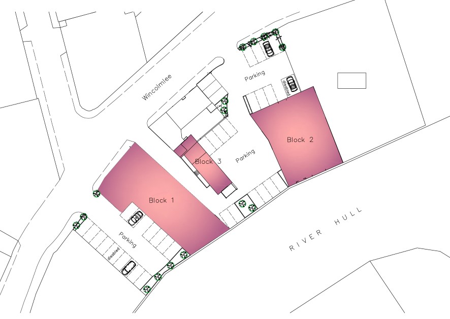
A rare opportunity to acquire the second phase of the highly successful Old Mill development—an impressive Grade II listed riverside building with full planning permission granted for conversion into 20 apartments, including 2 large penthouse apartments on the top floor. The property is currently a shell, offering developers and investors a blank canvas to replicate the neighbouring scheme, which was completed and fully let, achieving a strong rental yield and excellent market response. The building spans four floors, with a new Building Regulations-approved metal staircase in place. The top floor is already studded out, complete with Velux windows and balconies constructed into the new roof, indicating progress and structural readiness for conversion. This setup significantly reduces the upfront redevelopment work and offers a clear path to completion. Some windows have also been replaced, an electrical supply has been installed, and the building is free of pigeon infestation. As part of the development, the neighbouring industrial building will be demolished to create parking for the flats; however, it is currently let on a 12-month business tenancy on a full repairing basis at a rent of £5,198pa (£433pcm). The first phase of the development (located next door) comprises 22 apartments and now generates an impressive annual rental income of approximately £160,000. Rents in the existing building range from £600-£675 per flat on the lower floors to £800-£875 per flat on the top-floor apartments, demonstrating strong demand and rental growth potential. Set in a riverside location with access to ample off-street parking, this second phase benefits from the same appeal that made Phase 1 a resounding success. The approved plans allow a mix of one- and two-bedroom apartments, ideally suited to the local rental market. Additionally, the surrounding area is undergoing major regeneration, further enhancing the long-term investment outlook. Whether you’re an experienced investor looking to expand your portfolio or a developer seeking a project with planning, proven demand, and significant upside, this opportunity represents exceptional potential with much of the groundwork already in place.

Tenure

Freehold with part vacant possession upon completion and subject to the tenancy detailed above on the neighbouring building.

Location

High Flags Mills stands on Wincolmlee beside the River Hull, within one of Hull’s historic riverside quarters. You are a short walk from the city centre, Old Town, and the Fruit Market, with Hull Marina close by. The area combines strong industrial character with ongoing regeneration, creating a distinctive urban riverside setting.

Planning Consent

Planning was originally granted in 2014 for the conversion of both buildings under Planning Reference 14/00879/full. Development was therefore deemed to have commenced with the development of the neighbouring block, thus securing this consent.

Option to Purchase

The three-storey building that lies to the north of the Mill also has permission for conversion into two more apartments. This building will be offered to the purchaser of Mill 1 on a first-refusal basis (subject to negotiation).

Sold As Seen

The ground floor of the property has been used for storage by the current owner, including a large quantity of the bath/shower room sanitary fittings. The building is being 'sold as seen', so the remaining contents are included.

Services

Mains water, drainage, and electricity are connected; however, none of the services have been tested, and some may require upgrading during development. Purchasers should make their own enquiries in this regard.

Viewings

Strictly by appointment with the sole agents.

EPC

Exempt.

Method of Sale

The property will be offered for sale by online auction with bidding commencing at 12 noon on Monday, 23rd March 2026 and closing on Wednesday, 25th March 2026 at 1.00 pm. For further legal information relating to this lot, please log on to auctionhouse.co.uk/hullandeastyorkshire.

Conditions of Sale

The property will be sold subject to conditions of sale, copies of which will be available for inspection at the auctioneer’s offices, with the solicitors and online at auctionhouse.co.uk/hullandeastyorkshire before the date of the auction.

Services

Interested parties are invited to make their own enquiries to the relevant authorities as to the availability of the services.

Local Authority

Hull City Council

Solicitors

Symes Bains Broomer Solicitors, The Port Office, East Parade, Goole, DN14 5RB, Ref: Kayleigh Clarke, Tel: 01405 763 853

Important Notice to Prospective Buyers:

We draw your attention to the Special Conditions of Sale within the Legal Pack, referring to other charges in addition to the purchase price which may become payable. Such costs may include Search Fees, reimbursement of Sellers costs and Legal Fees, and Transfer Fees amongst others.

Additional Fees

Buyer's Premium - The purchaser will be required to pay a buyer’s premium of £900 (£750 + VAT) in addition to the purchase price of the property.

Administration Charge - The purchaser will be required to pay an administration charge of 0.3%, subject to a minimum of £900 (£750 plus VAT) in addition to the purchase price of the property.

Disbursements - Please refer to the legal pack for any disbursements listed that may become payable by the purchaser upon completion.

Please see the legal pack for any disbursements listed that may become payable by the purchaser on completion.

View Larger Map

Disclaimer: The map preview provided above is for general guidance only and may not accurately reflect the exact location or surrounding buildings. Prospective buyers and interested parties are strongly advised to independently verify the precise location and surroundings before bidding.