For Sale By Auction | 14:00, 13 November 2025 | Lot 3

52 Staples Drive, Coalville, Leicestershire LE67 4GN

Sold

  • Semi-Detached House
  • 3 Bedrooms
  • Tenure: Freehold

Call the team on 0116 222 7575 for more information

Auction Date

Thu 13/11/2025

Auction Time

14:00

Auction Venue

Livestream

A Modern semi detached house in need of renovation

***** FOR SALE BY PUBLIC AUCTION ON 13th NOVEMBER 2025. 2.00 PM. REGISTER TO BID**** Visit auctionhouse.co.uk/leicestershire A modern three bedroomed, semi detched house in a pleasant development. In need of renovation, the property has double glazing and gas central heating. Entrance hall with cloak/WC, lounge, dining room, and kitchen. On the first floor the master bedroom has an ensuite shower room and there are two further bedrooms and a family bathroom. Single garage and driveway and enclosed rear gardens.

Tenure

Freehold

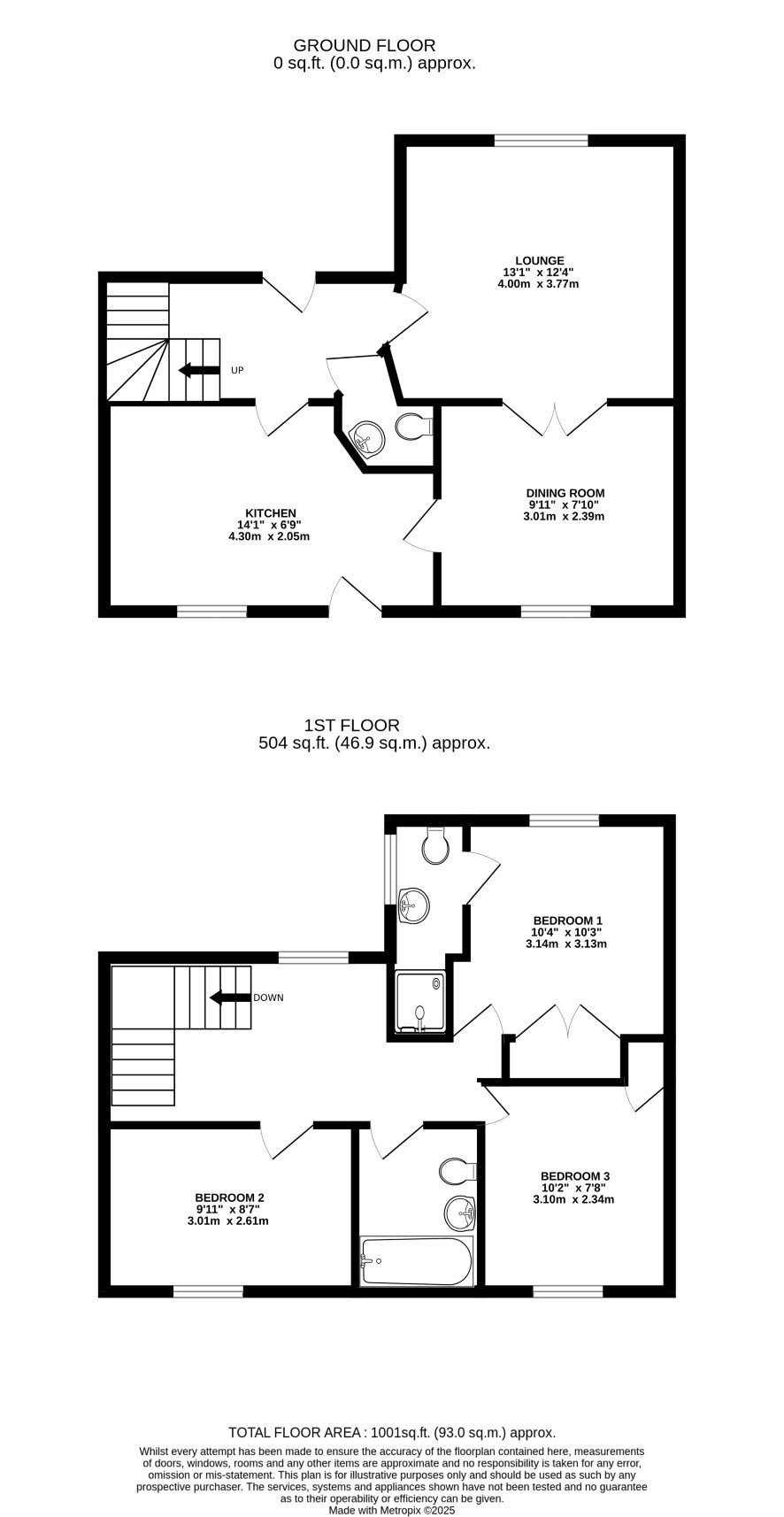
Ground Floor

Entrance hall, cloak/WC, lounge 4.00m x 3.13m, Dining Room 3.10m x 2.34m, Kitchen 4.30m x 2.05m

First Floor

Landing, Bedroom 1 3.14m x 3.13m , En suite, Bedroom 2 3.01m x 2.61m, Bedroom 3 3.10m x 2.34m, Bathroom 1.71m x 2.26m.

Outside

Gardens to the front and rear and single garage and driveway

Property Information

Tenure: Freehold Local Authority: North West leicestershire Council Tax Band: C Type of Construction: Traditonal Services: The property is offered to the market with all mains services and gas-fired central heating. Flood Risk: High Annual Estate Management Charge If Applicable: Not known The property is being with Vacant Possession upon completion. FIXTURES AND FITTINGS - All the items mentioned in these sales details are to be included within the purchase price. SERVICES - None of the services, fitting or appliances (if any) heating installations, plumbing or electrical systems have been tested by the auctioneers.

Services

Interested parties are requested to make their own enquiries to the relevant authorities as to the availability of services.

Local Authority

North West Leicestershire District Council

Important Notice to Prospective Buyers:

We draw your attention to the Special Conditions of Sale within the Legal Pack, referring to other charges in addition to the purchase price which may become payable. Such costs may include Search Fees, reimbursement of Sellers costs and Legal Fees, and Transfer Fees amongst others.

Additional Fees

Buyer's Premium - £1560 inc VAT payable on exchange of contracts.

Administration Charge - £1800 inc VAT payable on exchange of contracts.

Disbursements - Please see the legal pack for any disbursements listed that may become payable by the purchaser on completion.

View Larger Map

Disclaimer: The map preview provided above is for general guidance only and may not accurately reflect the exact location or surrounding buildings. Prospective buyers and interested parties are strongly advised to independently verify the precise location and surroundings before bidding.