Withdrawn | Lot 45A

Land Adjacent to 104 Park Road, Enfield, Middlesex, EN3 6LW

Withdrawn

  • Terraced House
  • 1 Bedroom
  • Tenure: Freehold

Call the team on 020 7625 9007 for more information

Auction Date

Wed 06/12/2023

Auction Time

08:45

Auction Venue

Live Stream

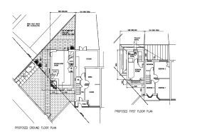
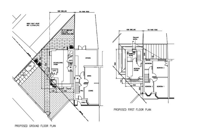
A Plot of Land Measuring Approximately 140 sq m (1,506 sq ft). Offered With Planning Permission for the Erection of a One Bedroom House

The lot comprises a plot of land measuring approximately 140 sq m (1,506 sq ft).

Tenure

Freehold

Location

The land is situated on a residential road close to local shops and amenities. The open spaces of Regional Open Space are within easy reach. Transport links are provided by Turkey Street overground station and Enfield Lock rail station.

Planning

Enfield Borough Council granted the following planning permission (ref: 23/02501/FUL) on 22nd September 2023: 'Construction of a 2-storey dwelling house, with associated refuse, cycle storage and private amenity space'.

Proposed Accommodation

Ground Floor Reception Room with Open Plan Kitchen W/C First Floor Bedroom Shower Room

Proposed Accommodation Exterior

The property will benefit from a rear garden.

The site area depicted within the plan in the auction particulars is for indicative purposes only. Additionally, any measurements stated may not be exact. Buyers should rely on their own enquiries with regard to precise measurements, any consents or rights over the land and any possible development potential or alternative uses for this site.

Services

Interested parties are requested to make their own enquiries to the relevant authorities as to the availability of services.

Important Notice to Prospective Buyers:

We draw your attention to the Special Conditions of Sale within the Legal Pack, referring to other charges in addition to the purchase price which may become payable. Such costs may include Search Fees, reimbursement of Sellers costs and Legal Fees, and Transfer Fees amongst others.

Additional Fees

Administration Charge - Purchasers will be required to pay an administration fee of £1,800 inc VAT

Disbursements - Please see the legal pack for any disbursements listed that may become payable by the purchaser on completion.

View Larger Map

Disclaimer: The map preview provided above is for general guidance only and may not accurately reflect the exact location or surrounding buildings. Prospective buyers and interested parties are strongly advised to independently verify the precise location and surroundings before bidding.