Withdrawn | Lot 110B

Flat 3, 49-51 Regent Street, Swindon, Wiltshire, SN1 1JS

Withdrawn

  • Flat
  • 2 Bedrooms
  • Tenure: Leasehold. The property will be sold on a new 999 year lease.

Call the team on 020 7625 9007 for more information

Auction Date

Wed 06/12/2023

Auction Time

08:45

Auction Venue

Live Stream

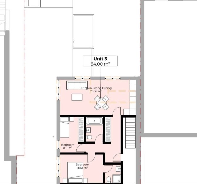
A Vacant First Floor Two Bedroom Flat

The property comprises a first floor two bedroom flat situated within a mid terrace building arranged over ground and first floors.

Tenure

Leasehold. The property will be sold on a new 999 year lease.

Location

The property is situated in Swindon City Centre close to local shops and amenities. The open spaces of Queens Park are within easy reach. Transport links are provided by Swindon rail station.

Accommodation

First Floor Reception Room with Open Plan Kitchen Two Bedrooms (One with En-Suite) Bathroom

Exterior

The property benefits from off street parking.

Energy Efficiency Rating (EPC)

Current Rating D

Services

Interested parties are requested to make their own enquiries to the relevant authorities as to the availability of services.

Important Notice to Prospective Buyers:

We draw your attention to the Special Conditions of Sale within the Legal Pack, referring to other charges in addition to the purchase price which may become payable. Such costs may include Search Fees, reimbursement of Sellers costs and Legal Fees, and Transfer Fees amongst others.

Additional Fees

Administration Charge - Purchasers will be required to pay an administration fee of £1,800 inc VAT

Disbursements - Please see the legal pack for any disbursements listed that may become payable by the purchaser on completion.

View Larger Map

Disclaimer: The map preview provided above is for general guidance only and may not accurately reflect the exact location or surrounding buildings. Prospective buyers and interested parties are strongly advised to independently verify the precise location and surroundings before bidding.