For Sale By Auction | 08:45, 06 December 2023 | Lot 24

Unit 7, 5 Eastfields Avenue, Wandsworth, London, SW18 1FU

Sold £300,000

  • Commercial Development
  • Tenure: Virtual Freehold. The property is held on a 999 year lease from 1st January 2012 (thus approximately 987 years unexpired).

Call the team on 020 7625 9007 for more information

Auction Date

Wed 06/12/2023

Auction Time

08:45

Auction Venue

Live Stream

Viewing Times:

Mon 27 Nov

12:00-12:30

Mon 4 Dec

15:30-16:00

A Commercial Investment Producing £26,000 Per Annum (Rising to £32,000 in 2026)

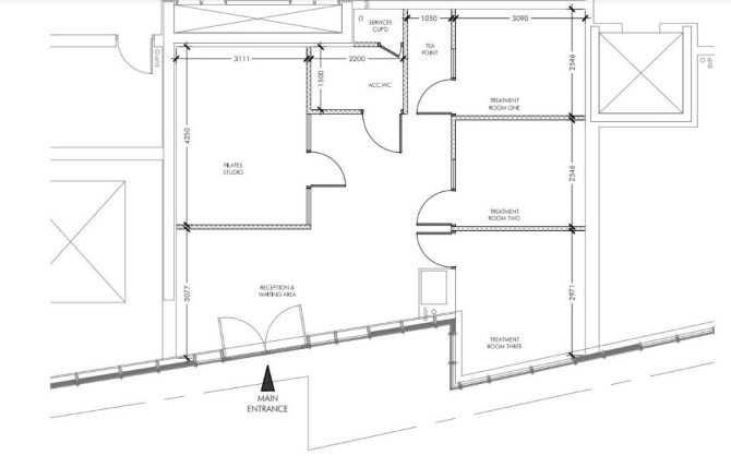
The property comprises a ground floor commercial unit situated within a mixed use block arranged over ground and eleven upper floors in the sought after Riverside Quarter. The property has been recently refurbished to a high standard and fully fitted out from shell and core to medical clinic specification.

Tenure

Virtual Freehold. The property is held on a 999 year lease from 1st January 2012 (thus approximately 987 years unexpired).

8 Week Completion Available

Location

The property is situated on a pedestrianised road close to local shops and amenities. The Thames Path and Wandsworth Park are within easy reach. Transport links are provided by East Putney underground station (District line) and Wandsworth rail station (Zone 2).

Accommodation

Ground Floor Retail Area G.I.A. Approx 900 sq ft

Tenancy

The property is subject to an effective FRI lease for a term of 6 years commencing 22nd May 2023 at a rent of £26,000 per annum, rising to £32,000 in 2026. Deposit (£13,000) and directors guarantees held. No arrears.

VAT

VAT is not applicable

Energy Efficiency Rating (EPC)

Current Rating C

Services

Interested parties are requested to make their own enquiries to the relevant authorities as to the availability of services.

Important Notice to Prospective Buyers:

We draw your attention to the Special Conditions of Sale within the Legal Pack, referring to other charges in addition to the purchase price which may become payable. Such costs may include Search Fees, reimbursement of Sellers costs and Legal Fees, and Transfer Fees amongst others.

Additional Fees

Administration Charge - Purchasers will be required to pay an administration fee of £1,800 inc VAT

Disbursements - Please see the legal pack for any disbursements listed that may become payable by the purchaser on completion.

View Larger Map

Disclaimer: The map preview provided above is for general guidance only and may not accurately reflect the exact location or surrounding buildings. Prospective buyers and interested parties are strongly advised to independently verify the precise location and surroundings before bidding.