For Sale By Auction | 08:45, 12 March 2024 | Lot 190

20 St. Marks Road, Sunderland, Tyne and Wear, SR4 7EE

Sold £35,500

  • Terraced House
  • 2 Bedrooms
  • Tenure: Freehold

Call the team on 020 7625 9007 for more information

Auction Date

Tue 12/03/2024

Auction Time

08:45

Auction Venue

Live Stream

Viewing Times:

Thu 7 Mar

11:00-11:30

Sat 9 Mar

14:00-14:30

Mon 11 Mar

12:00-12:30

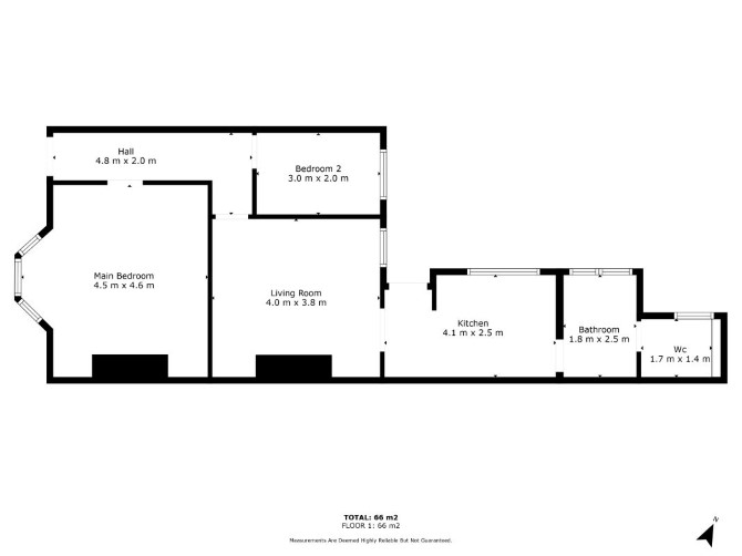
A Vacant Two Bedroom Mid Terrace Bungalow. ERV: £5,200 Per Annum (Source: LHA Rate)

The property comprises a two bedroom mid terrace bungalow arranged over the ground floor. The property requires some refurbishment.

Tenure

Freehold

Location

The property is situated on a residential road close to local shops and amenities. The open spaces of Riverside Park are within easy reach. Transport links are provided by Sunderland rail station.

Accommodation

Ground Floor Reception Room Kitchen Two Bedrooms Bathroom

Exterior

The property benefits from a rear garden.

Energy Efficiency Rating (EPC)

Current Rating F

Services

Interested parties are requested to make their own enquiries to the relevant authorities as to the availability of services.

Important Notice to Prospective Buyers:

We draw your attention to the Special Conditions of Sale within the Legal Pack, referring to other charges in addition to the purchase price which may become payable. Such costs may include Search Fees, reimbursement of Sellers costs and Legal Fees, and Transfer Fees amongst others.

Additional Fees

Administration Charge - Purchasers will be required to pay an administration fee of £1,800 inc VAT

Disbursements - Please see the legal pack for any disbursements listed that may become payable by the purchaser on completion.

View Larger Map

Disclaimer: The map preview provided above is for general guidance only and may not accurately reflect the exact location or surrounding buildings. Prospective buyers and interested parties are strongly advised to independently verify the precise location and surroundings before bidding.