Sold Prior | Lot 58

First & Second Floors, 219A Kilburn High Road, Kilburn, London, NW6 7JG

Sold Prior

  • Terraced House
  • 5 Bedrooms
  • Tenure: Leasehold. The property is held on a 99 year lease from 29th September 1992 (thus approximately 67 years unexpired). At the buyer's request and costs a section 42 notice to extend the lease will be served prior to completion, the rights of which would be assigned to the incoming buyer.

Call the team on 020 7625 9007 for more information

Auction Date

Tue 12/03/2024

Auction Time

08:45

Auction Venue

Live Stream

Viewing Times:

Wed 28 Feb

10:00-10:30

Fri 1 Mar

10:00-10:30

Tue 5 Mar

10:00-10:30

Thu 7 Mar

10:00-10:30

Mon 11 Mar

10:00-10:30

A Residential Investment Comprising Five Self-Contained Studio Flats. When Fully Let on Nightly Rents the Total Combined Income is £77,740 Per Annum.

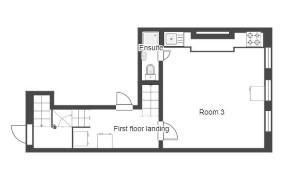
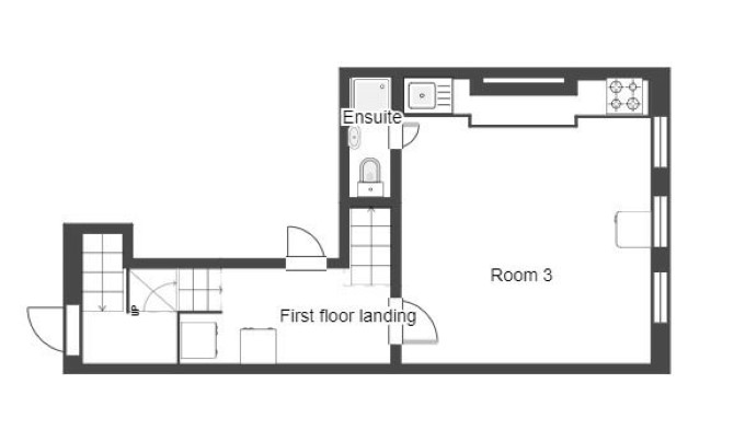
The property comprises five self-contained studio flats arranged over first and second floors with a total GIA of approximately 1,264 sq ft. The flats have their own rear entrance.

Tenure

Leasehold. The property is held on a 99 year lease from 29th September 1992 (thus approximately 67 years unexpired). At the buyer's request and costs a section 42 notice to extend the lease will be served prior to completion, the rights of which would be assigned to the incoming buyer.

Location

The property is situated on Kilburn High Road close to local shops and amenities. The open space of Kilburn Grange Park is within easy reach. Transport links are provided by Kilburn underground station (Jubilee line) and Kilburn High Road rail station.

Tenancy

The five self-contained flats are currently let on a nightly basis with an income of £77,740 per annum (assuming full occupancy each night).

Services

Interested parties are requested to make their own enquiries to the relevant authorities as to the availability of services.

Important Notice to Prospective Buyers:

We draw your attention to the Special Conditions of Sale within the Legal Pack, referring to other charges in addition to the purchase price which may become payable. Such costs may include Search Fees, reimbursement of Sellers costs and Legal Fees, and Transfer Fees amongst others.

Additional Fees

Administration Charge - Purchasers will be required to pay an administration fee of £1,800 inc VAT

Disbursements - Please see the legal pack for any disbursements listed that may become payable by the purchaser on completion.

View Larger Map

Disclaimer: The map preview provided above is for general guidance only and may not accurately reflect the exact location or surrounding buildings. Prospective buyers and interested parties are strongly advised to independently verify the precise location and surroundings before bidding.