Withdrawn | Lot 70A

Garage/Workshop (B1/B2/Office), The Crest, Hendon, London, NW4 2HN

Withdrawn

  • Residential Development
  • Tenure: Freehold

Call the team on 020 7625 9007 for more information

Auction Date

Tue 12/03/2024

Auction Time

08:45

Auction Venue

Live Stream

A Vacant Detached Workshop (B1/B2/Office) Offered With Planning Permission for Conversion and a Change of Use to Provide an Extended Office Space with the Addition of a First Floor Studio Flat

The property comprises a single story double fronted workshop/garage (B1/B2/Office).

Tenure

Freehold

Location

The property is situated behind a parade of shops and is accessed via a service road driveway. The property is close to local shops and amenities. The open spaces of Hendon Park are within easy reach. Transport links are provided by Hendon Central underground station (Northern line).

Accommodation

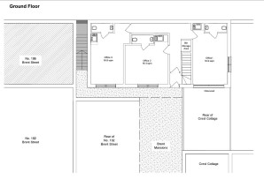
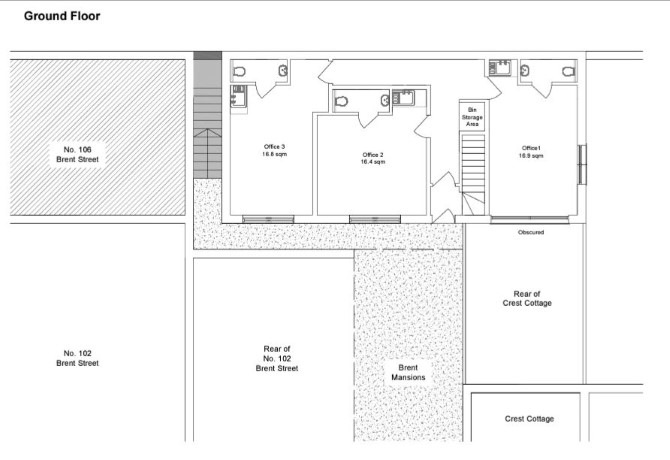
Ground Floor Workshop/Garage Approx. 92 sq m / 1,000 sq ft

Planning

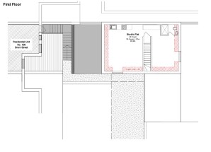
Barnet Borough Council granted the following planning permission (ref: 23/0804/FUL) on 26th April 2023: 'Extension and conversion of existing garage including construction of a first floor mansard roof extension with 1no. front and 1no. side dormer windows and 1no. rooflight to front to provide office space on ground floor and 1no. studio flat at first floor level'

Proposed Accommodation

Ground Floor Three Office Rooms all with W/C First Floor Studio Flat with Kitchenette and Shower Room

Services

Interested parties are requested to make their own enquiries to the relevant authorities as to the availability of services.

Important Notice to Prospective Buyers:

We draw your attention to the Special Conditions of Sale within the Legal Pack, referring to other charges in addition to the purchase price which may become payable. Such costs may include Search Fees, reimbursement of Sellers costs and Legal Fees, and Transfer Fees amongst others.

Additional Fees

Administration Charge - Purchasers will be required to pay an administration fee of £1,800 inc VAT

Disbursements - Please see the legal pack for any disbursements listed that may become payable by the purchaser on completion.

View Larger Map

Disclaimer: The map preview provided above is for general guidance only and may not accurately reflect the exact location or surrounding buildings. Prospective buyers and interested parties are strongly advised to independently verify the precise location and surroundings before bidding.