For Sale By Auction | 09:00, 11 December 2024 | Lot 12

8 Model Farm Close, Mottingham, London, SE9 4DR

Sold £161,000

  • Flat
  • 2 Bedrooms
  • Tenure: Leasehold. The property is held on a 99 year lease from 25th March 1961 (thus approximately 35 years unexpired). A section 42 notice to extend the lease will be served prior to completion, the rights of which would be assigned to the incoming buyer.

Call the team on 020 7625 9007 for more information

Auction Date

Wed 11/12/2024

Auction Time

09:00

Auction Venue

Live Stream

Viewing Times:

Thu 28 Nov

13:45-14:15

Mon 2 Dec

13:45-14:15

Wed 4 Dec

13:45-14:15

Fri 6 Dec

13:45-14:15

Sat 7 Dec

13:45-14:15

Tue 10 Dec

13:45-14:15

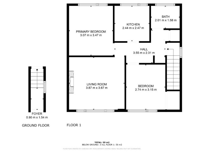
A Vacant First Floor Two Bedroom Maisonette

The property comprises a first floor two bedroom maisonette situated within an end of terrace building arranged over the ground floor.

Tenure

Leasehold. The property is held on a 99 year lease from 25th March 1961 (thus approximately 35 years unexpired). A section 42 notice to extend the lease will be served prior to completion, the rights of which would be assigned to the incoming buyer.

Location

The property is situated on a residential road close to local shops and amenities. The open spaces of Mottingham Recreation Ground are within easy reach. Transport links are provided by Mottingham rail station and the A20.

Accommodation

First Floor Reception Room Kitchen Two Bedrooms Bathroom

Exterior

The property benefits from a rear garden. a garage and off street parking.

Further Information

When purchasing a flat that has a short lease, it is important to understand that in addition to the purchase price, if you wish to extend the lease to 90+ years, you will need to pay a premium to the freeholder. This is done by way of serving a Section 42 notice to the freeholder requesting a lease extension with a suggested price for the extension. The freeholder has the right to refuse the offer and submit a counter notice with their suggested price. In most cases, the leaseholder must have owned the property for at least 2 years in order to serve a S42 notice. If you do not fully understand this process, please ask the auctioneers or a solicitor.

Energy Efficiency Rating (EPC)

Current Rating D

Services

Interested parties are requested to make their own enquiries to the relevant authorities as to the availability of services.

Important Notice to Prospective Buyers:

We draw your attention to the Special Conditions of Sale within the Legal Pack, referring to other charges in addition to the purchase price which may become payable. Such costs may include Search Fees, reimbursement of Sellers costs and Legal Fees, and Transfer Fees amongst others.

Additional Fees

Administration Charge - Purchasers will be required to pay an administration fee of £1,800 inc VAT

Disbursements - Please see the legal pack for any disbursements listed that may become payable by the purchaser on completion.

View Larger Map

Disclaimer: The map preview provided above is for general guidance only and may not accurately reflect the exact location or surrounding buildings. Prospective buyers and interested parties are strongly advised to independently verify the precise location and surroundings before bidding.