For Sale By Auction | 09:00, 11 December 2024 | Lot 127

The White House Residential Care Home, 29 Beverley Road, Driffield, North Humberside, YO25 6RZ

Sold £310,000

  • Detached House
  • 18 Bedrooms

Call the team on 020 7625 9007 for more information

Auction Date

Wed 11/12/2024

Auction Time

09:00

Auction Venue

Live Stream

Viewing Times:

Wed 27 Nov

12:00-12:30

Fri 29 Nov

12:00-12:30

Thu 5 Dec

12:00-12:30

Tue 10 Dec

11:00-11:30

A Freehold Substantial Detached Building Arranged to Provide an Eighteen Bedroom Residential Care Home. Potential for Re-Development (Subject to Obtaining all Necessary Consents)

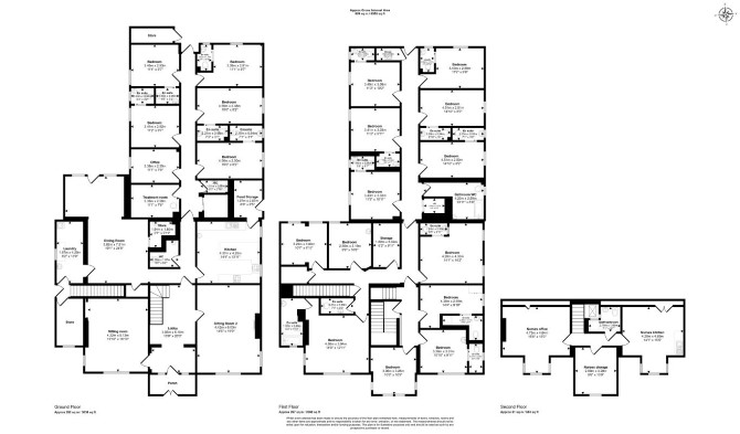
The property comprises a substantial detached building arranged to provide an eighteen bedroom room care home over ground and two upper floors.

Location

The property is situated on a residential road close to local shops and amenities. The open spaces of Randall Garth Playground are within easy reach. Transport links are provided by Driffield rail station.

Accommodation

Ground Floor Five Bedrooms with En-Suites Three Communal Reception Rooms Communal Kitchen Utility Room Communal Bathroom Office Two WCs Two Storerooms Treatment Room First Floor Thirteen Bedrooms (Twelve with En-Suites) Communal Bathroom Storeroom Second Floor Two Offices Staff Room Total G.I.A. Approximately 511 sq m

Exterior

The property benefits from communal gardens and off street parking.

Services

Interested parties are requested to make their own enquiries to the relevant authorities as to the availability of services.

Important Notice to Prospective Buyers:

We draw your attention to the Special Conditions of Sale within the Legal Pack, referring to other charges in addition to the purchase price which may become payable. Such costs may include Search Fees, reimbursement of Sellers costs and Legal Fees, and Transfer Fees amongst others.

Additional Fees

Administration Charge - Purchasers will be required to pay an administration fee of £1,800 inc VAT

Disbursements - Please see the legal pack for any disbursements listed that may become payable by the purchaser on completion.

View Larger Map

Disclaimer: The map preview provided above is for general guidance only and may not accurately reflect the exact location or surrounding buildings. Prospective buyers and interested parties are strongly advised to independently verify the precise location and surroundings before bidding.