For Sale By Auction | 09:00, 11 December 2024 | Lot 146

83 Perth Road, Leyton, London, E10 7PA

Sold £325,000

  • Flat
  • 2 Bedrooms
  • Tenure: Leasehold. The property is held on a 999 year lease from 29th September 1909 (thus approximately 884 years unexpired).

Call the team on 020 7625 9007 for more information

Auction Date

Wed 11/12/2024

Auction Time

09:00

Auction Venue

Live Stream

Viewing Times:

Thu 28 Nov

14:00-14:30

Sat 30 Nov

12:00-12:30

Mon 2 Dec

14:00-14:30

Wed 4 Dec

14:00-14:30

Fri 6 Dec

14:00-14:30

Tue 10 Dec

14:00-14:30

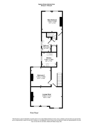
A First Floor Two Bedroom Flat

The property comprises a first floor two bedroom flat situated within a mid terrace building arranged over ground and first floors.

Tenure

Leasehold. The property is held on a 999 year lease from 29th September 1909 (thus approximately 884 years unexpired).

Location

The property is situated on a residential road close to local shops and amenities. The open spaces of Hackney Marshes are within easy reach. Transport links are provided by Leyton underground station (Central line) and Lea Bridge rail station.

Accommodation

First Floor Reception Room Kitchen Two Bedrooms Bathroom

Exterior

The property benefits from a private rear garden.

Energy Efficiency Rating (EPC)

Current Rating C

Services

Interested parties are requested to make their own enquiries to the relevant authorities as to the availability of services.

Important Notice to Prospective Buyers:

We draw your attention to the Special Conditions of Sale within the Legal Pack, referring to other charges in addition to the purchase price which may become payable. Such costs may include Search Fees, reimbursement of Sellers costs and Legal Fees, and Transfer Fees amongst others.

Additional Fees

Administration Charge - Purchasers will be required to pay an administration fee of £1,800 inc VAT

Disbursements - Please see the legal pack for any disbursements listed that may become payable by the purchaser on completion.

View Larger Map

Disclaimer: The map preview provided above is for general guidance only and may not accurately reflect the exact location or surrounding buildings. Prospective buyers and interested parties are strongly advised to independently verify the precise location and surroundings before bidding.