For Sale By Auction | 09:00, 11 December 2024 | Lot 122

Land to the Side of 38 Sycamore Avenue, Wirral, Merseyside, CH49 4QJ

Sold £57,000

  • Land
  • 3 Bedrooms
  • Tenure: Freehold

Call the team on 020 7625 9007 for more information

Auction Date

Wed 11/12/2024

Auction Time

09:00

Auction Venue

Live Stream

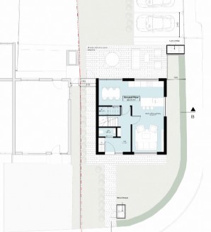
A Plot of Land Measuring Approximately 242 sq m (2,604 sq ft). Offered with Planning Permission for the Erection of a Three Bedroom Detached House.

The plot comprises a plot of land measuring approximately 242 sq m (2,604 sq ft).

Tenure

Freehold

Location

The land is situated on a residential road close to local shops and amenities. The open spaces of Overchurch Park Woodlands are within easy reach. Transport links are provided by Upton rail station.

Exterior

The property benefits from off street parking for two cars.

Planning

Wirral Council granted the following planning permission (ref: APP/23/01425) on 6th September 2024: 'Sub-division of plot and erection of 1no. 3-bed detached residential dwelling.

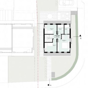
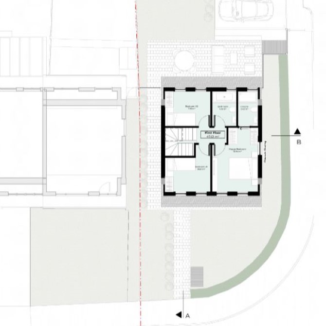
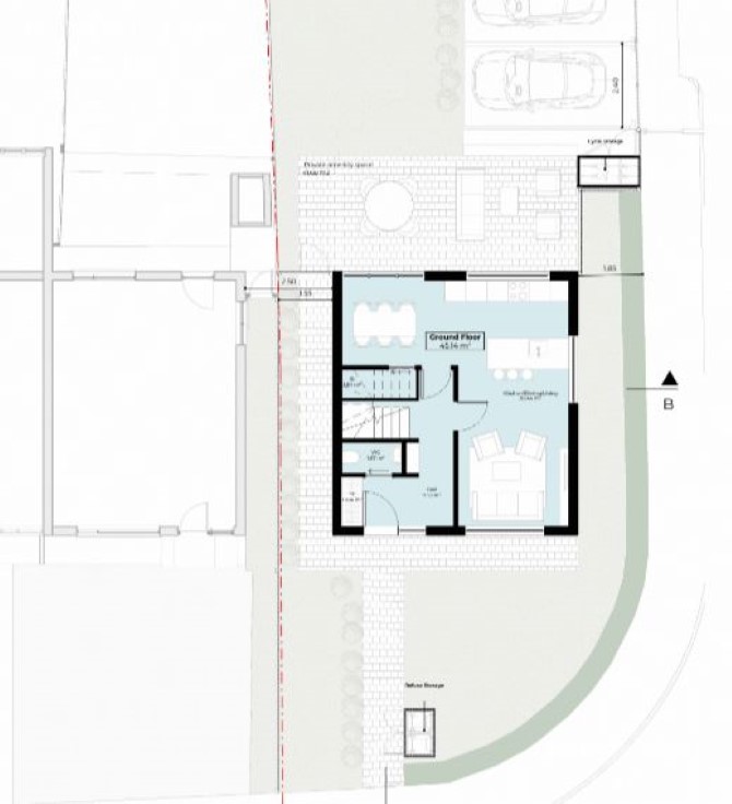
Proposed Accommodation

Ground Floor Reception Room Kitchen/Diner First Floor Three Bedrooms Two Bathrooms

The site area depicted within the plan in the auction particulars is for indicative purposes only. Additionally, any measurements stated may not be exact. Some or all of the plot may comprise adopted highway land and if the site has trees, there may be Tree Preservation Orders in place. potential or alternative uses for this site.

Services

Interested parties are requested to make their own enquiries to the relevant authorities as to the availability of services.

Important Notice to Prospective Buyers:

We draw your attention to the Special Conditions of Sale within the Legal Pack, referring to other charges in addition to the purchase price which may become payable. Such costs may include Search Fees, reimbursement of Sellers costs and Legal Fees, and Transfer Fees amongst others.

Additional Fees

Administration Charge - Purchasers will be required to pay an administration fee of £1,800 inc VAT

Disbursements - Please see the legal pack for any disbursements listed that may become payable by the purchaser on completion.

View Larger Map

Disclaimer: The map preview provided above is for general guidance only and may not accurately reflect the exact location or surrounding buildings. Prospective buyers and interested parties are strongly advised to independently verify the precise location and surroundings before bidding.