For Sale By Auction | 09:00, 11 December 2024 | Lot 5

271 Feltham Hill Road, Ashford, Middlesex, TW15 1LT

Sold After

  • Detached Bungalow
  • 3 Bedrooms
  • Tenure: Freehold

Call the team on 020 7625 9007 for more information

Auction Date

Wed 11/12/2024

Auction Time

09:00

Auction Venue

Live Stream

Viewing Times:

Wed 27 Nov

14:30-15:00

Fri 29 Nov

14:30-15:00

Tue 3 Dec

14:30-15:00

Thu 5 Dec

14:30-15:00

Sat 7 Dec

11:00-11:30

Mon 9 Dec

14:30-15:00

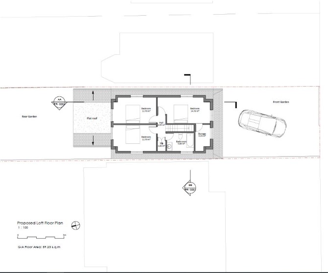
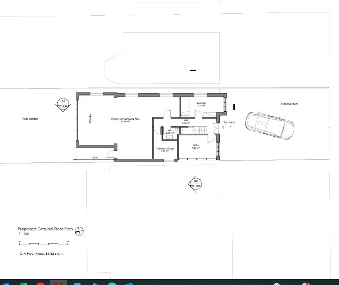
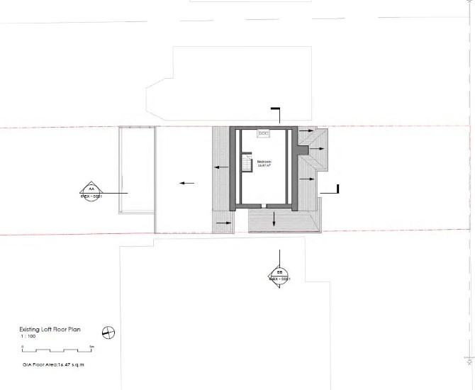
A Vacant Three Bedroom Detached Bungalow. Offered with Planning Permission for a Side, Rear and Loft Extension to Create a Four/Five Bedroom Bungalow.

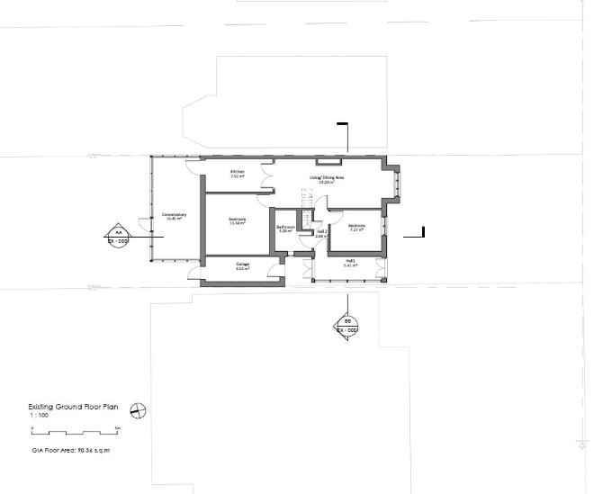
The property comprises a three bedroom detached bungalow arranged over the ground floor.

Tenure

Freehold

Location

The property is situated on a residential road close to local shops and amenities. The open spaces of Feltham Hill Road Recreation Ground are within easy reach. Transport links are provided by Ashford rail station.

Accommodation

Ground Floor Reception Room Kitchen Two Bedrooms Conservatory Bathroom First Floor Bedroom

Exterior

The property benefits from a rear garden, off street parking and a swimming pool.

Planning

Spelthorne Borough Council granted the following planning permission (ref: 24/01148/HOU) on 22nd November 2024: 'Erection of a single storey side extension, part single and part two storey rear extension, roof re-construction and extension to create a pitched roof with 2 no. flank dormers, new sloped roof at ground floor level on the front elevation, and associated changes to fenestration'.

Energy Efficiency Rating (EPC)

Current Rating G

Services

Interested parties are requested to make their own enquiries to the relevant authorities as to the availability of services.

Important Notice to Prospective Buyers:

We draw your attention to the Special Conditions of Sale within the Legal Pack, referring to other charges in addition to the purchase price which may become payable. Such costs may include Search Fees, reimbursement of Sellers costs and Legal Fees, and Transfer Fees amongst others.

Additional Fees

Administration Charge - Purchasers will be required to pay an administration fee of £1,800 inc VAT

Disbursements - Please see the legal pack for any disbursements listed that may become payable by the purchaser on completion.

View Larger Map

Disclaimer: The map preview provided above is for general guidance only and may not accurately reflect the exact location or surrounding buildings. Prospective buyers and interested parties are strongly advised to independently verify the precise location and surroundings before bidding.