Withdrawn | Lot 194

78 Caroline Street, Hetton-le-Hole, Houghton Le Spring, Tyne And Wear, DH5 9DE

Withdrawn

  • Terraced House
  • 3 Bedrooms
  • Tenure: Freehold

Call the team on 020 7625 9007 for more information

Auction Date

Thu 24/04/2025

Auction Time

10:00

Auction Venue

Live Stream

Viewing Times:

Sat 12 Apr

10:30-11:00

Sat 19 Apr

10:30-11:00

A Three Bedroom Mid Terrace House Subject to an Assured Shorthold Tenancy Producing £6,300 Per Annum

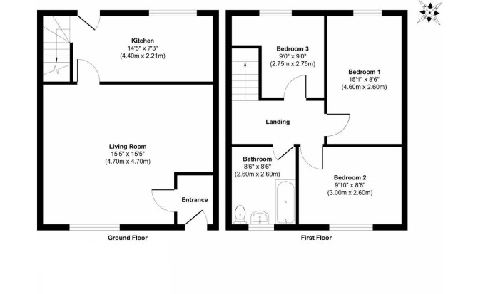
The property comprises a three bedroom mid terrace house arranging over ground and first floors.

Tenure

Freehold

Location

The property is situated on a residential road close to local shops and amenities. The open spaces of Hetton Lyons Country Park are within easy reach. Transport links are provided by Seaham rail station.

Accommodation

Ground Floor Reception Room Kitchen First Floor Three Bedrooms Bathroom

Exterior

The property benefits from a rear yard.

Tenancy

The property is subject to an Assured Shorthold Tenancy at a rent of £6,300 per annum.

Energy Efficiency Rating (EPC)

Current Rating C

Services

Interested parties are requested to make their own enquiries to the relevant authorities as to the availability of services.

Important Notice to Prospective Buyers:

We draw your attention to the Special Conditions of Sale within the Legal Pack, referring to other charges in addition to the purchase price which may become payable. Such costs may include Search Fees, reimbursement of Sellers costs and Legal Fees, and Transfer Fees amongst others.

Additional Fees

Administration Charge - Purchasers will be required to pay an administration fee of £1,500 inc VAT

Disbursements - Please see the legal pack for any disbursements listed that may become payable by the purchaser on completion.

View Larger Map

Disclaimer: The map preview provided above is for general guidance only and may not accurately reflect the exact location or surrounding buildings. Prospective buyers and interested parties are strongly advised to independently verify the precise location and surroundings before bidding.