A Mixed Use Detached Building Arranged to Provide a Vacant Ground Floor Shop and a First Floor Flat (Sold Off). Offered With Planning Permission to Convert the Rear of The Shop into Two Flats.
The property comprises a detached building over ground and first floors arranged to provide a vacant ground floor shop and a first floor flat (sold off). The ground floor shop requires a program of refurbishment.
Tenure
Freehold
Location
The property is situated on a mixed use road close to local shops and amenities. The open spaces of Stanford-le-Hope Recreation Ground are within easy reach. Transport links are provided by Stanford-le-Hope rail station.
Accommodation
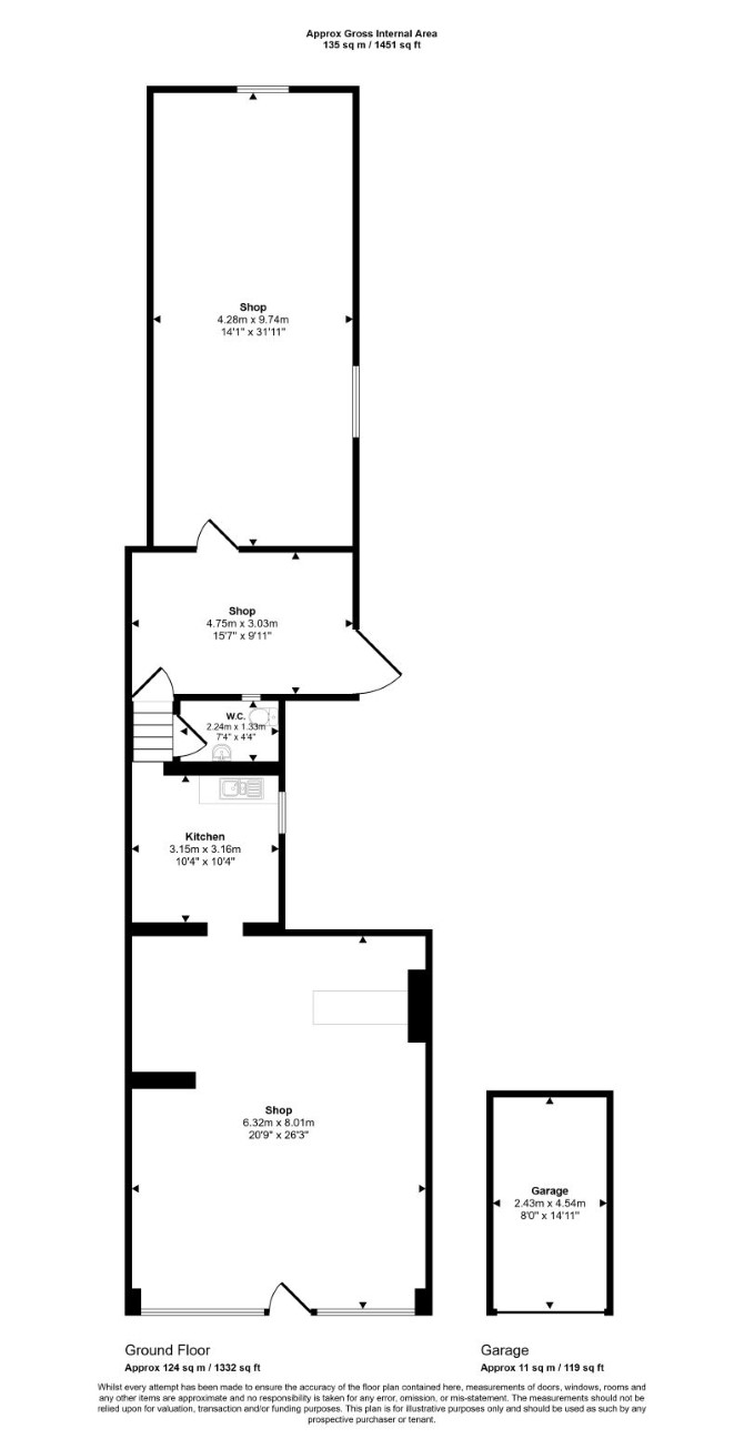
Ground Floor Three Rooms Kitchen Separate WC G.I.A Approximately 127 sq m (1,363 sq ft) Including the Rear Garden First Floor Flat (Sold Off)
Exterior
The property benefits from a rear garden and a garage.
Planning
Thurrock Borough Council granted the following planning permission (ref: 24/01257/PAOFFR) on 3rd February 2025 : 'Prior Approval under Town and Country Planning (General Permitted Development) Order 2015 (as amended) Schedule 2, Part 3, Class MA for the conversion of the rear of the commercial unit (Use class E) into 2x residential dwellings (Use Class C3) consisting of 1x studio flat and 1x 1bed flat)'.
Tenancy
The first floor flat has been sold off on a 125 year lease from 29th September 1988.
The seller has advised the current ground rent for 24a Corringham Road is £150 per annum.
Energy Efficiency Rating (EPC)
Current Rating C
Services
Interested parties are requested to make their own enquiries to the relevant authorities as to the availability of services.
Important Notice to Prospective Buyers:
We draw your attention to the Special Conditions of Sale within the Legal Pack, referring to other charges in addition to the purchase price which may become payable. Such costs may include Search Fees, reimbursement of Sellers costs and Legal Fees, and Transfer Fees amongst others.
Additional Fees
Administration Charge - Purchasers will be required to pay an administration fee of £1,500 inc VAT
Disbursements - Please see the legal pack for any disbursements listed that may become payable by the purchaser on completion.
Disclaimer: The map preview provided above is for general guidance only and may not accurately reflect the exact location or surrounding buildings. Prospective buyers and interested parties are strongly advised to independently verify the precise location and surroundings before bidding.