For Sale By Auction | 10:00, 29 May 2025 | Lot 189

18-20 Alexandra Road, Blackpool, Lancashire, FY1 6BU

Sold £348,000

  • Hotel
  • 18 Bedrooms
  • Tenure: Freehold

Call the team on 020 7625 9007 for more information

Auction Date

Thu 29/05/2025

Auction Time

10:00

Auction Venue

Live Stream

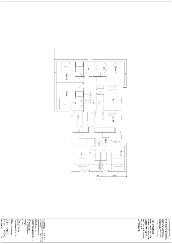
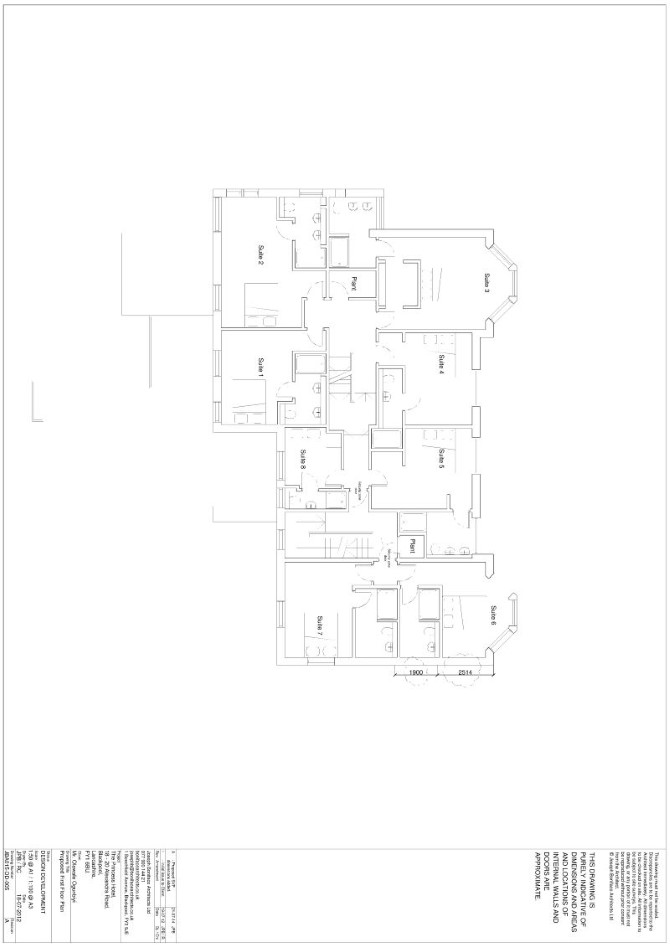
A Vacant Substantial Detached Building Arranged to Provide a Eighteen Bedroom Hotel with a Private Two Bedroom Flat

The property comprises a substantial detached building arranged to provide a sixteen bedroom hotel with a two bedroom flat benefiting from two private entrances and two private parking spaces.. Part of the property requires a program of refurbishment.

Tenure

Freehold

Location

The property is situated on a mixed use road within walking distance of Blackpool Promenade and local shops and amenities. The open spaces of Blackpool Beach and George Bancroft Park are also within easy reach. Transport links are provided by Blackpool South rail station.

Accommodation

Lower Ground Floor Two Cellars Ground Floor Two Reception Rooms Kitchen WC Bar Private Flat Reception Room with Open-Plan Kitchen Two Bedrooms Two Bathrooms First Floor Eight Bedrooms (all with En-Suites) Second Floor Eight Bedrooms (all with En-Suites)

Exterior

The property benefits from 20 car parking spaces in a gated car park and a communal front garden.

The property has not been inspected by Auction House London. All information has been supplied by the vendor.

Services

Interested parties are requested to make their own enquiries to the relevant authorities as to the availability of services.

Important Notice to Prospective Buyers:

We draw your attention to the Special Conditions of Sale within the Legal Pack, referring to other charges in addition to the purchase price which may become payable. Such costs may include Search Fees, reimbursement of Sellers costs and Legal Fees, and Transfer Fees amongst others.

Additional Fees

Administration Charge - Purchasers will be required to pay an administration fee of £1,500 inc VAT

Disbursements - Please see the legal pack for any disbursements listed that may become payable by the purchaser on completion.

View Larger Map

Disclaimer: The map preview provided above is for general guidance only and may not accurately reflect the exact location or surrounding buildings. Prospective buyers and interested parties are strongly advised to independently verify the precise location and surroundings before bidding.