For Sale By Auction | 09:30, 28 May 2025 | Lot 55

76A Grange Park Road, Thornton Heath, Surrey, CR7 8QB

*Guide | £230,000+ (plus fees)

  • Apartment
  • 2 Bedrooms
  • Tenure: Leasehold. The property is held on a 125 year lease from 25th March 1993 (thus approximately 92 years unexpired).

Call the team on 020 7625 9007 for more information

Auction Date

Wed 28/05/2025

Auction Time

09:30

Auction Venue

Live Stream

Viewing Times:

Wed 14 May

11:00-11:30

Fri 16 May

11:00-11:30

Sat 17 May

11:30-12:00

Tue 20 May

11:00-11:30

Thu 22 May

11:00-11:30

Mon 26 May

11:00-11:30

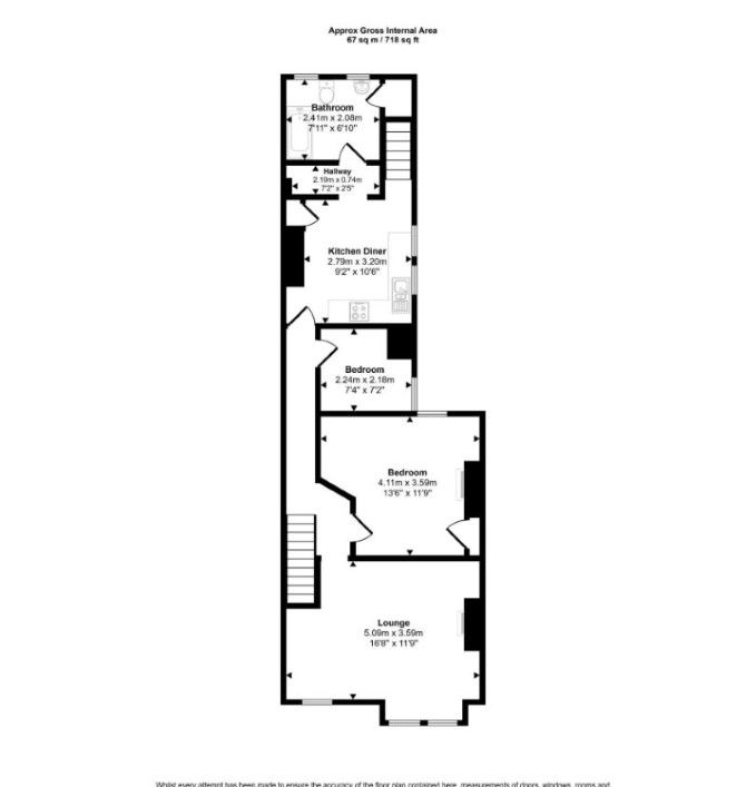
A Vacant First Floor Two Bedroom Maisonette

The property comprises a first floor two bedroom maisonette situated within a mid terrace building arranging over ground and first floors. The property requires a program of refurbishment.

Tenure

Leasehold. The property is held on a 125 year lease from 25th March 1993 (thus approximately 92 years unexpired).

Location

The property is situated on a residential road close to local shops and amenities. The open spaces of Grangewood Park are within easy reach. Transport links are provided by Norwood Junction overground station and Thornton Heath rail station.

Accommodation

First Floor Reception Room Kitchen Two Bedrooms Bathroom

Energy Efficiency Rating (EPC)

Current Rating E

Services

Interested parties are requested to make their own enquiries to the relevant authorities as to the availability of services.

Important Notice to Prospective Buyers:

We draw your attention to the Special Conditions of Sale within the Legal Pack, referring to other charges in addition to the purchase price which may become payable. Such costs may include Search Fees, reimbursement of Sellers costs and Legal Fees, and Transfer Fees amongst others.

Additional Fees

Administration Charge - Purchasers will be required to pay an administration fee of £1,500 inc VAT

Disbursements - Please see the legal pack for any disbursements listed that may become payable by the purchaser on completion.

View Larger Map

Disclaimer: The map preview provided above is for general guidance only and may not accurately reflect the exact location or surrounding buildings. Prospective buyers and interested parties are strongly advised to independently verify the precise location and surroundings before bidding.