For Sale By Auction | 09:30, 10 September 2025 | Lot 50

13 Church Street, Wing, Leighton Buzzard, Bedfordshire, LU7 0NY

Sold £233,000

  • Terraced House
  • 3 Bedrooms
  • Tenure: Freehold

Call the team on 020 7625 9007 for more information

Auction Date

Wed 10/09/2025

Auction Time

09:30

Auction Venue

Live Stream

Viewing Times:

Wed 27 Aug

15:00-15:30

Fri 29 Aug

15:00-15:30

Sat 30 Aug

12:15-12:45

Tue 2 Sep

15:00-15:30

Thu 4 Sep

15:00-15:30

Mon 8 Sep

15:00-15:30

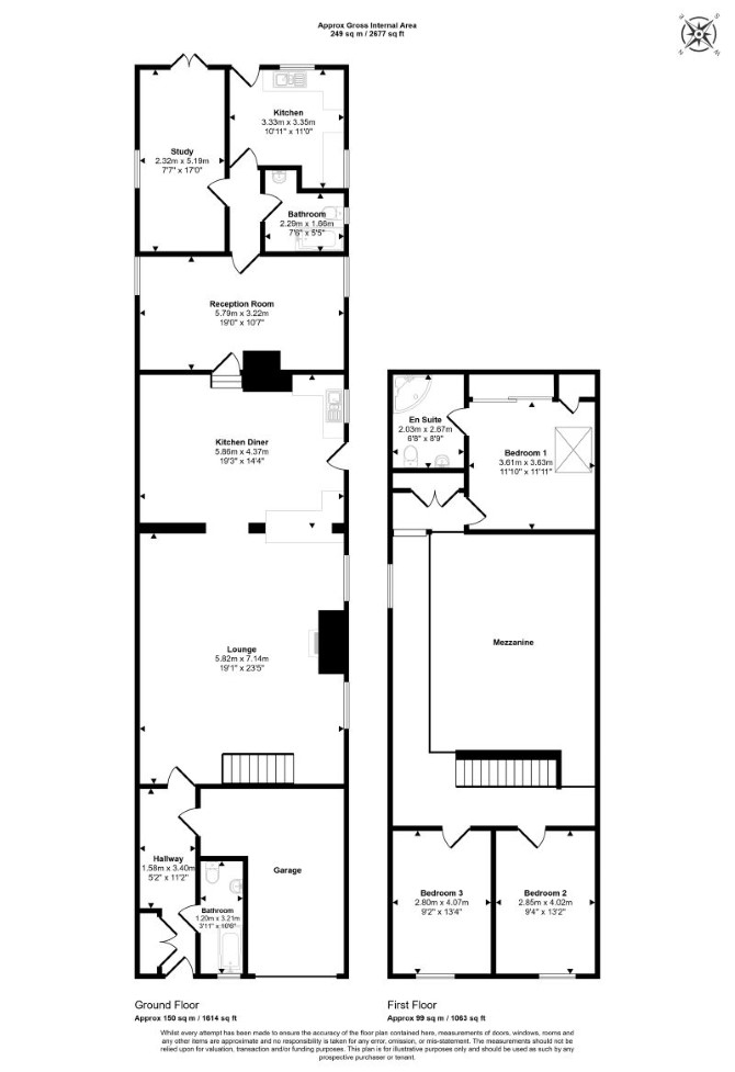
A Vacant Substantial Three Bedroom Mid Terrace House

The property comprises a three bedroom mid terrace house arranged over ground and first floors.

Tenure

Freehold

Location

The property is situated on a residential road close to local shops and amenities. The open spaces of Parson's Close Recreation Ground are within easy reach. Transport links are provided by Leighton Buzzard rail station.

Accommodation

Ground Floor Four Reception Rooms Kitchen Bathroom First Floor Three Bedrooms (One with En-Suite) Approx. G.I.A 249 sq m / 2,677 sq ft

Exterior

The property benefits from both front and rear gardens and a garage.

Energy Efficiency Rating (EPC)

Current Rating E

Services

Interested parties are requested to make their own enquiries to the relevant authorities as to the availability of services.

Important Notice to Prospective Buyers:

We draw your attention to the Special Conditions of Sale within the Legal Pack, referring to other charges in addition to the purchase price which may become payable. Such costs may include Search Fees, reimbursement of Sellers costs and Legal Fees, and Transfer Fees amongst others.

Additional Fees

Administration Charge - Purchasers will be required to pay an administration fee of £1,500 inc VAT

Disbursements - Please see the legal pack for any disbursements listed that may become payable by the purchaser on completion.