For Sale By Auction | 09:30, 10 September 2025 | Lot 23

7 Trelawney Road, Falmouth, Cornwall, TR11 3LS

Sold £167,000

  • Terraced House
  • 4 Bedrooms
  • Tenure: Freehold

Call the team on 020 7625 9007 for more information

Auction Date

Wed 10/09/2025

Auction Time

09:30

Auction Venue

Live Stream

Viewing Times:

Tue 2 Sep

12:00-12:30

Thu 4 Sep

12:00-12:30

Sat 6 Sep

10:00-10:30

Tue 9 Sep

12:00-12:30

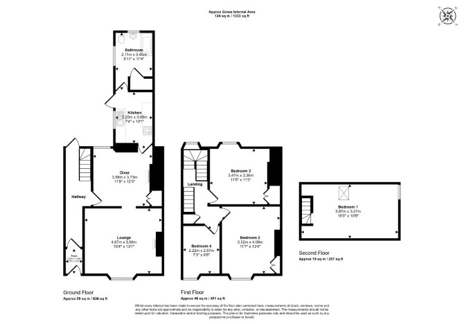
A Vacant Four Bedroom Mid Terrace House

The property comprises a four bedroom mid terrace arranged over ground and two upper floors.

Tenure

Freehold

Location

The property is situated on a residential road close to local shops and amenities. The open spaces of Kimberley Park are within easy reach. Transport links are provided by Penmere rail station.

Accommodation

Ground Floor Two Reception Rooms Kitchen Bathroom First Floor Three Bedrooms Second Floor Bedroom

Exterior

The property benefits from a rear garden.

Energy Efficiency Rating (EPC)

Current Rating G

Services

Interested parties are requested to make their own enquiries to the relevant authorities as to the availability of services.

Important Notice to Prospective Buyers:

We draw your attention to the Special Conditions of Sale within the Legal Pack, referring to other charges in addition to the purchase price which may become payable. Such costs may include Search Fees, reimbursement of Sellers costs and Legal Fees, and Transfer Fees amongst others.

Additional Fees

Administration Charge - Purchasers will be required to pay an administration fee of £1,500 inc VAT

Disbursements - Please see the legal pack for any disbursements listed that may become payable by the purchaser on completion.